Woning Tielsestraat 10 Valburg

Tielsestraat 10, 6675AD Valburg

Ontvang updates voor Verspreide huizen Valburg

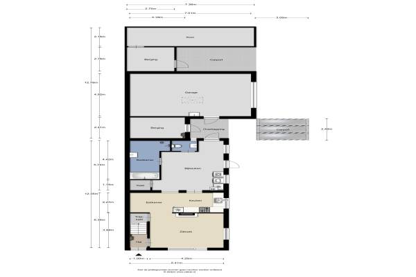
Het adres van deze woning uit 1920 is Tielsestraat 10 te Valburg. Het pand heeft een oppervlakte van 94m² en een perceeloppervlakte van 752m² en heeft 3 kamers kamers waarvan 2 slaapkamers. De geschatte waarde van deze woning is € 250.000.

Bekijk alle woningen in Verspreide huizen Valburg

Gegevens van Eengezinswoning, 2-onder-1-kapwoning

Bouwjaar
1920
Geschatte waarde
€ 250.000
Oppervlakte
94 m2
Inhoud
653 m3
Aantal kamers
3 kamers
Slaapkamers
2
Badkamers
1 apart toilet
Soort bouw
Bestaande bouw
Eigendomssituatie
Volle eigendom
Ligging
Aan rustige weg en vrij uitzicht
Tuin
Achtertuin, voortuin en zijtuin
Achtertuin
400 m² (20m diep en 12,5m breed)

Voorzieningen in de buurt

Boodschappen1,8 km
Grote supermarkt1,8 km
Cafetaria1,7 km
Restaurant1,8 km
Huisarts3,0 km
Ziekenhuis8,3 km
Kinderdagverblijf1,5 km
BSO1,6 km
Alle voorzieningen in Verspreide huizen Valburg

Binnenkijken bij Tielsestraat 10 te Valburg

Meer meldingen in deze omgeving

112 melding
Woensdag 10-12-2025 om 07:39
Heterensestraat, 6675MA Valburg

112 melding
Maandag 8-12-2025 om 15:01
Heterensestraat, 6675MA Valburg

112 melding
Maandag 8-12-2025 om 15:01
Heterensestraat, 6675MA Valburg

112 melding
Zondag 7-12-2025 om 18:29
Tielsestraat, 6675AD Valburg

112 melding
Zondag 7-12-2025 om 18:29
Tielsestraat, 6675AD Valburg

112 melding
Donderdag 4-12-2025 om 09:51
Zeegstraat, 6675MB Valburg

112 melding
Donderdag 4-12-2025 om 09:51
Zeegstraat, 6675MB Valburg

112 melding
Donderdag 4-12-2025 om 09:51
Zeegstraat, 6675MB Valburg

Direct een e-mail ontvangen bij nieuwe meldingen in deze regio?

Meld je dan GRATIS aan voor de Oozo Alert service voor Verspreide huizen Valburg

Instellen

Meer nieuws in Verspreide huizen Valburg

Weten hoe eenvoudig het is om af te vallen? Zonder pillen en smeersels en zonder je in het zweet te werken!
Kijk op eenvoudig-afvallen.nl

© 2012 - 2025 OOZO.nl - info@oozo.nl - Gegevens verwijderen? | Disclaimer | Privacy statement