Woning Lijsterbesstraat 19 Oude Pekela

Lijsterbesstraat 19, 9665HJ Oude Pekela

Ontvang updates voor Oude Pekela

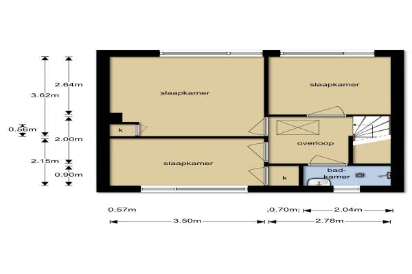
Het adres van deze woning uit 1963 is Lijsterbesstraat 19 te Oude Pekela. Het pand heeft een oppervlakte van 90m² en een perceeloppervlakte van 163m² en heeft 4 kamers kamers waarvan 3 slaapkamers. De geschatte waarde van deze woning is € 82.500.

Bekijk alle woningen in Oude Pekela

Gegevens van Eengezinswoning, tussenwoning

Bouwjaar
1963
Geschatte waarde
€ 82.500
Oppervlakte
90 m2
Inhoud
338 m3
Aantal kamers
4 kamers
Slaapkamers
3
Badkamers
1 badkamer en 1 apart toilet
Soort bouw
Bestaande bouw
Eigendomssituatie
Volle eigendom
Ligging
In woonwijk
Tuin
Achtertuin en voortuin
Achtertuin
48 m² (8m diep en 6m breed)

Voorzieningen in de buurt

Boodschappen0,6 km
Grote supermarkt1,0 km
Cafetaria0,6 km
Restaurant0,8 km
Huisarts0,9 km
Ziekenhuis11,1 km
Kinderdagverblijf0,7 km
BSO0,7 km
Alle voorzieningen in Oude Pekela

Binnenkijken bij Lijsterbesstraat 19 te Oude Pekela

Meer meldingen in deze omgeving

112 melding
Zaterdag 23-5-2026 om 03:07
Scheepshellingstraat, Oude Pekela

Binnenlands nieuws
Vrijdag 22-5-2026
Oude Pekela

Nieuw bedrijf
Mei 2026
Scholtenswijk 1, 9665KN Oude Pekela

Nieuw bedrijf
Mei 2026
Scholtenswijk 1, 9665KN Oude Pekela

Nieuw bedrijf
Mei 2026
Burgemeester van Weringstraat 69, 9665GP Oude Pekela

Nieuw bedrijf
Mei 2026
Hendrik Westerstraat 199, 9665AV Oude Pekela

Nieuw bedrijf
Mei 2026
Burgemeester van Weringstraat 69, 9665GP Oude Pekela

Binnenlands nieuws
Donderdag 21-5-2026
Oude Pekela

Direct een e-mail ontvangen bij nieuwe meldingen in deze regio?

Meld je dan GRATIS aan voor de Oozo Alert service voor Oude Pekela

Instellen

Meer nieuws in Oude Pekela

Weten hoe eenvoudig het is om af te vallen? Zonder pillen en smeersels en zonder je in het zweet te werken!
Kijk op eenvoudig-afvallen.nl

© 2012 - 2026 OOZO.nl - info@oozo.nl - Gegevens verwijderen? | Disclaimer | Privacy statement