Woning Ade 11 Pijnacker

Ade 11, 2642JX Pijnacker

Ontvang updates voor Tolhek

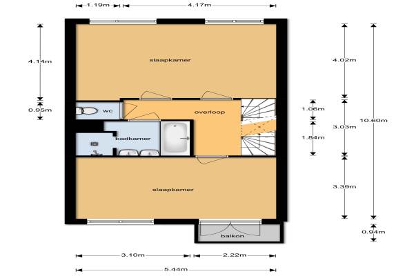
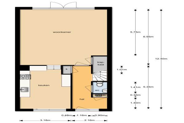
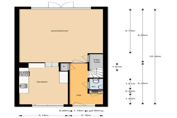
Het adres van deze woning uit 2005 is Ade 11 te Pijnacker. Het pand heeft een oppervlakte van 172m² en een perceeloppervlakte van 176m² en heeft 4 kamers kamers waarvan 3 slaapkamers. De geschatte waarde van deze woning is € 479.000.

Bekijk alle woningen in Tolhek

Gegevens van Eengezinswoning, tussenwoning

Bouwjaar
2005
Geschatte waarde
€ 479.000
Oppervlakte
172 m2
Inhoud
614 m3
Aantal kamers
4 kamers
Slaapkamers
3
Soort bouw
Bestaande bouw
Eigendomssituatie
Volle eigendom
Ligging
Aan park, in woonwijk en vrij uitzicht
Tuin
Achtertuin en voortuin
Achtertuin
63 m² (11,82m diep en 5,34m breed)

Voorzieningen in de buurt

Boodschappen1,0 km
Grote supermarkt1,0 km
Cafetaria1,0 km
Restaurant0,5 km
Huisarts1,0 km
Ziekenhuis3,2 km
Kinderdagverblijf0,6 km
BSO0,7 km
Alle voorzieningen in Tolhek

Binnenkijken bij Ade 11 te Pijnacker

Meer meldingen in deze omgeving

112 melding
Maandag 20-4-2026 om 13:44
De Gouwe, 2642KH Pijnacker

Nieuw bedrijf
April 2026
Thurlede 39, 2642KG Pijnacker

Nieuw bedrijf
April 2026
Meersingel 23, 2642JC Pijnacker

Binnenkijken bij
Donderdag 16-4-2026
De Harnasch 16, 2642DV Pijnacker

112 melding
Woensdag 15-4-2026 om 12:33
De Gouwe, 2642KH Pijnacker

112 melding
Woensdag 15-4-2026 om 12:31
De Gouwe, 2642KH Pijnacker

112 melding
Zondag 12-4-2026 om 12:01
Ade, 2642JX Pijnacker

112 melding
Vrijdag 10-4-2026 om 15:33
Gantellaan, Pijnacker

Direct een e-mail ontvangen bij nieuwe meldingen in deze regio?

Meld je dan GRATIS aan voor de Oozo Alert service voor Tolhek

Instellen

Meer nieuws in Tolhek

Weten hoe eenvoudig het is om af te vallen? Zonder pillen en smeersels en zonder je in het zweet te werken!
Kijk op eenvoudig-afvallen.nl

© 2012 - 2026 OOZO.nl - info@oozo.nl - Gegevens verwijderen? | Disclaimer | Privacy statement