Woning Kamvaren 18 Purmerend

Kamvaren 18, 1441SV Purmerend

Ontvang updates voor Gors-Zuid

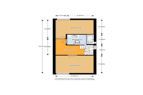
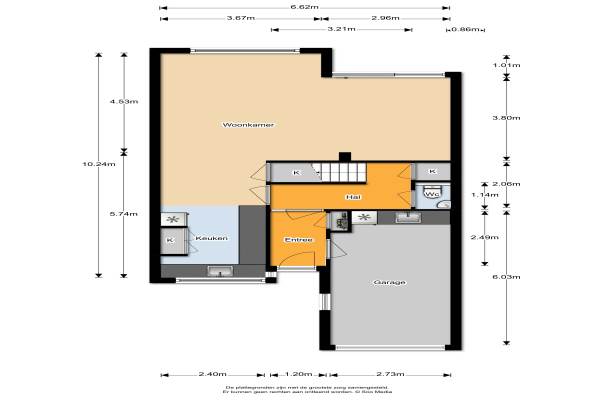
Het adres van deze woning uit 1978 is Kamvaren 18 te Purmerend. Het pand heeft een oppervlakte van 131m² en een perceeloppervlakte van 229m² en heeft 5 kamers kamers waarvan 4 slaapkamers. De geschatte waarde van deze woning is € 350.000.

Bekijk alle woningen in Gors-Zuid

Gegevens van Eengezinswoning, 2-onder-1-kapwoning

Bouwjaar
1978
Geschatte waarde
€ 350.000
Oppervlakte
131 m2
Inhoud
520 m3
Aantal kamers
5 kamers
Slaapkamers
4
Badkamers
1 badkamer en 1 apart toilet
Soort bouw
Bestaande bouw
Eigendomssituatie
Volle eigendom
Ligging
In woonwijk, open ligging en vrij uitzicht
Tuin
Achtertuin, voortuin en zonneterras
Achtertuin
105 m² (15m diep en 7m breed)

Voorzieningen in de buurt

Boodschappen1,1 km
Grote supermarkt1,1 km
Cafetaria0,6 km
Restaurant2,1 km
Huisarts1,3 km
Ziekenhuis2,0 km
Kinderdagverblijf0,8 km
BSO1,0 km
Alle voorzieningen in Gors-Zuid

Binnenkijken bij Kamvaren 18 te Purmerend

Meer meldingen in deze omgeving

112 melding
Zaterdag 29-11-2025 om 02:04
Fonteinkruid, Purmerend

112 melding
Zaterdag 29-11-2025 om 01:35
Fonteinkruid, Purmerend

Binnenkijken bij
Vrijdag 28-11-2025
Koningsvaren 28, 1441SH Purmerend

Binnenkijken bij
Vrijdag 28-11-2025
Pluimgras 45, 1441WS Purmerend

Nieuw bedrijf
November 2025
Penningkruid 50, 1441XZ Purmerend

Nieuw bedrijf
November 2025
Koningsvaren 79, 1441SE Purmerend

Nieuw bedrijf
November 2025
Boterbloem 1A, 1441TT Purmerend

Nieuw bedrijf
November 2025
Koningsvaren 79, 1441SE Purmerend

Direct een e-mail ontvangen bij nieuwe meldingen in deze regio?

Meld je dan GRATIS aan voor de Oozo Alert service voor Gors-Zuid

Instellen

Meer nieuws in Gors-Zuid

Weten hoe eenvoudig het is om af te vallen? Zonder pillen en smeersels en zonder je in het zweet te werken!
Kijk op eenvoudig-afvallen.nl

© 2012 - 2025 OOZO.nl - info@oozo.nl - Gegevens verwijderen? | Disclaimer | Privacy statement