Woning Vechtstraat 27 Purmerend

Vechtstraat 27, 1442SH Purmerend

Ontvang updates voor Overwhere-Zuid

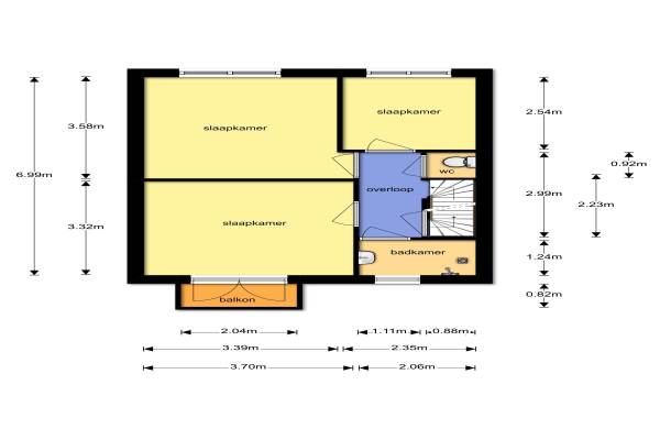
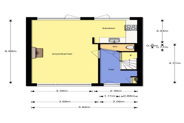
Het adres van deze woning uit 1962 is Vechtstraat 27 te Purmerend. Het pand heeft een oppervlakte van 82m² en een perceeloppervlakte van 131m² en heeft 5 kamers kamers waarvan 4 slaapkamers. De geschatte waarde van deze woning is € 212.500.

Bekijk alle woningen in Overwhere-Zuid

Gegevens van Eengezinswoning, tussenwoning

Bouwjaar
1962
Geschatte waarde
€ 212.500
Oppervlakte
82 m2
Inhoud
383 m3
Aantal kamers
5 kamers
Slaapkamers
4
Badkamers
1 badkamer en 2 aparte toiletten
Soort bouw
Bestaande bouw
Eigendomssituatie
Volle eigendom
Ligging
Aan rustige weg en in woonwijk
Tuin
Achtertuin en voortuin
Achtertuin
58 m² (10m diep en 5,75m breed)

Voorzieningen in de buurt

Boodschappen0,5 km
Grote supermarkt0,6 km
Cafetaria0,5 km
Restaurant0,7 km
Huisarts0,7 km
Ziekenhuis1,9 km
Kinderdagverblijf0,5 km
BSO0,6 km
Alle voorzieningen in Overwhere-Zuid

Binnenkijken bij Vechtstraat 27 te Purmerend

Meer meldingen in deze omgeving

112 melding
Donderdag 5-3-2026 om 08:16
Suze Groenewegstraat, Purmerend

Nieuw bedrijf
Maart 2026
Gasinjetstraat 12, 1442WN Purmerend

Binnenkijken bij
Woensdag 4-3-2026
Sportlaan 139, 1442EC Purmerend

Nieuw bedrijf
Maart 2026
Marga Klompéstraat 5, 1442BL Purmerend

112 melding
Dinsdag 3-3-2026 om 16:42
Hoornselaan, Purmerend

112 melding
Dinsdag 3-3-2026 om 16:36
Hoornselaan, Purmerend

112 melding
Dinsdag 3-3-2026 om 12:53
Hoornselaan, Purmerend

Binnenkijken bij
Dinsdag 3-3-2026
Suze Groenewegstraat 91, 1442NC Purmerend

Direct een e-mail ontvangen bij nieuwe meldingen in deze regio?

Meld je dan GRATIS aan voor de Oozo Alert service voor Overwhere-Zuid

Instellen

Meer nieuws in Overwhere-Zuid

Weten hoe eenvoudig het is om af te vallen? Zonder pillen en smeersels en zonder je in het zweet te werken!
Kijk op eenvoudig-afvallen.nl

© 2012 - 2026 OOZO.nl - info@oozo.nl - Gegevens verwijderen? | Disclaimer | Privacy statement