Woning Haverstraat 31 Purmerend

Haverstraat 31, 1446CD Purmerend

Ontvang updates voor De Graeffweg en omgeving

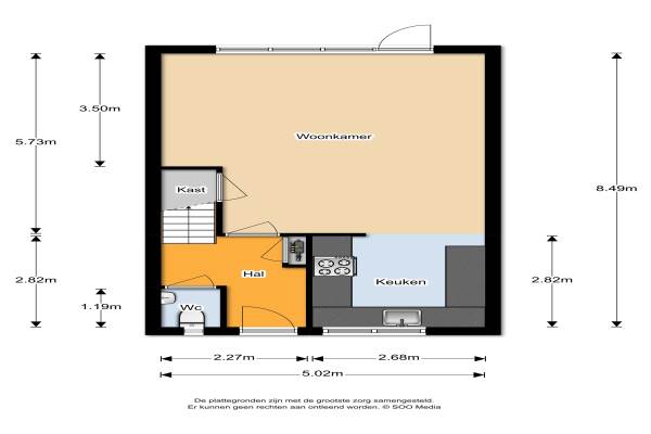
Het adres van deze woning uit 1983 is Haverstraat 31 te Purmerend. Het pand heeft een oppervlakte van 105m² en een perceeloppervlakte van 129m² en heeft 4 kamers kamers waarvan 3 slaapkamers. De geschatte waarde van deze woning is € 225.000.

Bekijk alle woningen in De Graeffweg en omgeving

Gegevens van Eengezinswoning, tussenwoning

Bouwjaar
1983
Geschatte waarde
€ 225.000
Oppervlakte
105 m2
Inhoud
400 m3
Aantal kamers
4 kamers
Slaapkamers
3
Badkamers
1 badkamer en 1 apart toilet
Soort bouw
Bestaande bouw
Eigendomssituatie
Volle eigendom
Ligging
Aan rustige weg en in woonwijk
Tuin
Achtertuin en voortuin
Achtertuin
68 m² (12,4m diep en 5,5m breed)

Voorzieningen in de buurt

Boodschappen1,1 km
Grote supermarkt1,1 km
Cafetaria1,0 km
Restaurant1,2 km
Huisarts1,3 km
Ziekenhuis2,9 km
Kinderdagverblijf0,5 km
BSO0,5 km
Alle voorzieningen in De Graeffweg en omgeving

Binnenkijken bij Haverstraat 31 te Purmerend

Meer meldingen in deze omgeving

112 melding
Zaterdag 27-12-2025 om 08:35
Graanstraat, Purmerend

Binnenkijken bij
Vrijdag 26-12-2025
Parkstee 49, 1446HM Purmerend

112 melding
Woensdag 24-12-2025 om 15:14
Papaverstraat, Purmerend

112 melding
Dinsdag 23-12-2025 om 17:18
De Graeffweg, Purmerend

Nieuw bedrijf
December 2025
Heemstee 28, 1446HB Purmerend

112 melding
Zondag 21-12-2025 om 12:09
Korenstraat, Purmerend

112 melding
Donderdag 18-12-2025 om 18:50
Wakerdijk, Purmerend

112 melding
Dinsdag 16-12-2025 om 03:36
Maanzaadstraat, Purmerend

Direct een e-mail ontvangen bij nieuwe meldingen in deze regio?

Meld je dan GRATIS aan voor de Oozo Alert service voor De Graeffweg en omgeving

Instellen

Meer nieuws in De Graeffweg en omgeving

Weten hoe eenvoudig het is om af te vallen? Zonder pillen en smeersels en zonder je in het zweet te werken!
Kijk op eenvoudig-afvallen.nl

© 2012 - 2025 OOZO.nl - info@oozo.nl - Gegevens verwijderen? | Disclaimer | Privacy statement