Woning Parkstee 52 Purmerend

Parkstee 52, 1446HX Purmerend

Ontvang updates voor De Graeffweg en omgeving

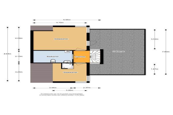
Het adres van deze woning uit 1997 is Parkstee 52 te Purmerend. Het pand heeft een oppervlakte van 150m² en een perceeloppervlakte van 257m² en heeft 4 kamers kamers waarvan 3 slaapkamers. De geschatte waarde van deze woning is € 425.000.

Bekijk alle woningen in De Graeffweg en omgeving

Gegevens van Eengezinswoning, tussenwoning

Bouwjaar
1997
Geschatte waarde
€ 425.000
Oppervlakte
150 m2
Inhoud
500 m3
Aantal kamers
4 kamers
Slaapkamers
3
Badkamers
2 badkamers en 1 apart toilet
Soort bouw
Bestaande bouw
Eigendomssituatie
Volle eigendom
Ligging
Aan park, aan water, in woonwijk, landelijk gelegen en vrij uitzicht
Tuin
Achtertuin, voortuin en zonneterras
Achtertuin
600 m² (6m diep en 100m breed)

Voorzieningen in de buurt

Boodschappen1,1 km
Grote supermarkt1,1 km
Cafetaria1,0 km
Restaurant1,2 km
Huisarts1,3 km
Ziekenhuis2,9 km
Kinderdagverblijf0,5 km
BSO0,5 km
Alle voorzieningen in De Graeffweg en omgeving

Binnenkijken bij Parkstee 52 te Purmerend

Meer meldingen in deze omgeving

112 melding
Zondag 30-11-2025 om 03:17
Vlasstraat, Purmerend

112 melding
Vrijdag 28-11-2025 om 18:39
De Graeffweg, Purmerend

112 melding
Vrijdag 28-11-2025 om 11:20
Dromerdijk, Purmerend

Binnenkijken bij
Vrijdag 28-11-2025
Parkstee 38, 1446HW Purmerend

Nieuw bedrijf
November 2025
Boekweitstraat 133, 1446CN Purmerend

112 melding
Donderdag 27-11-2025 om 14:45
Slaperdijk, Purmerend

112 melding
Donderdag 27-11-2025 om 05:20
Heemstee, Purmerend

112 melding
Donderdag 27-11-2025 om 05:20
Heemstee, Purmerend

Direct een e-mail ontvangen bij nieuwe meldingen in deze regio?

Meld je dan GRATIS aan voor de Oozo Alert service voor De Graeffweg en omgeving

Instellen

Meer nieuws in De Graeffweg en omgeving

Weten hoe eenvoudig het is om af te vallen? Zonder pillen en smeersels en zonder je in het zweet te werken!
Kijk op eenvoudig-afvallen.nl

© 2012 - 2025 OOZO.nl - info@oozo.nl - Gegevens verwijderen? | Disclaimer | Privacy statement