Woning Portelstraat 38 Purmerend

Portelstraat 38, 1445LB Purmerend

Ontvang updates voor Maten- en Zuivelbuurt

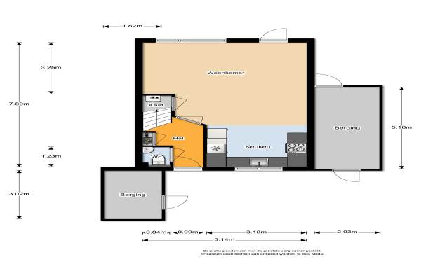
Het adres van deze woning uit 1987 is Portelstraat 38 te Purmerend. Het pand heeft een oppervlakte van 101m² en een perceeloppervlakte van 202m² en heeft 5 kamers kamers waarvan 4 slaapkamers. De geschatte waarde van deze woning is € 237.500.

Bekijk alle woningen in Maten- en Zuivelbuurt

Gegevens van Eengezinswoning, hoekwoning

Bouwjaar
1987
Geschatte waarde
€ 237.500
Oppervlakte
101 m2
Inhoud
385 m3
Aantal kamers
5 kamers
Slaapkamers
4
Badkamers
1 badkamer en 1 apart toilet
Soort bouw
Bestaande bouw
Eigendomssituatie
Eigendom belast met erfpacht
Ligging
Aan water en in woonwijk
Tuin
Achtertuin, voortuin en zijtuin
Achtertuin
84 m² (10,2m diep en 8,2m breed)

Voorzieningen in de buurt

Boodschappen1,0 km
Grote supermarkt1,0 km
Cafetaria0,9 km
Restaurant1,0 km
Huisarts0,9 km
Ziekenhuis2,2 km
Kinderdagverblijf0,8 km
BSO0,7 km
Alle voorzieningen in Maten- en Zuivelbuurt

Binnenkijken bij Portelstraat 38 te Purmerend

Meer meldingen in deze omgeving

Binnenkijken bij
Dinsdag 11-11-2025
Geersstraat 29, 1445EB Purmerend

Binnenkijken bij
Dinsdag 11-11-2025
Botertonstraat 17, 1445LG Purmerend

Binnenkijken bij
Dinsdag 11-11-2025
Westerweg 55K, 1445AC Purmerend

112 melding
Dinsdag 4-11-2025 om 14:50
Roedestraat, Purmerend

112 melding
Vrijdag 31-10-2025 om 14:15
Karnstraat, 1445KV Purmerend

112 melding
Woensdag 29-10-2025 om 16:45
Kaasvormstraat, 1445LD Purmerend

Binnenkijken bij
Woensdag 29-10-2025
Karnstraat 36, 1445KV Purmerend

Nieuw bedrijf
Oktober 2025
Geersstraat 21, 1445EA Purmerend

Direct een e-mail ontvangen bij nieuwe meldingen in deze regio?

Meld je dan GRATIS aan voor de Oozo Alert service voor Maten- en Zuivelbuurt

Instellen

Meer nieuws in Maten- en Zuivelbuurt

Weten hoe eenvoudig het is om af te vallen? Zonder pillen en smeersels en zonder je in het zweet te werken!
Kijk op eenvoudig-afvallen.nl

© 2012 - 2025 OOZO.nl - info@oozo.nl - Gegevens verwijderen? | Disclaimer | Privacy statement