Woning Roomvatstraat 25 Purmerend

Roomvatstraat 25, 1445LE Purmerend

Ontvang updates voor Maten- en Zuivelbuurt

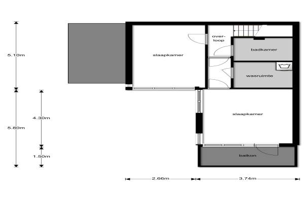
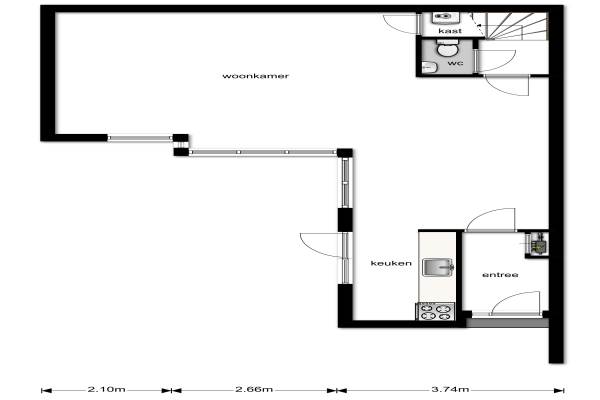
Het adres van deze woning uit 1986 is Roomvatstraat 25 te Purmerend. Het pand heeft een oppervlakte van 100m² en een perceeloppervlakte van 143m² en heeft 3 kamers kamers waarvan 2 slaapkamers. De geschatte waarde van deze woning is € 235.000.

Bekijk alle woningen in Maten- en Zuivelbuurt

Gegevens van Eengezinswoning, hoekwoning (kwadrant woning)

Bouwjaar
1986
Geschatte waarde
€ 235.000
Oppervlakte
100 m2
Inhoud
350 m3
Aantal kamers
3 kamers
Slaapkamers
2
Badkamers
1 badkamer en 1 apart toilet
Soort bouw
Bestaande bouw
Eigendomssituatie
Volle eigendom
Ligging
Aan rustige weg, in woonwijk en beschutte ligging
Tuin
Voortuin en zijtuin

Voorzieningen in de buurt

Boodschappen1,0 km
Grote supermarkt1,0 km
Cafetaria0,9 km
Restaurant1,0 km
Huisarts0,9 km
Ziekenhuis2,2 km
Kinderdagverblijf0,8 km
BSO0,7 km
Alle voorzieningen in Maten- en Zuivelbuurt

Binnenkijken bij Roomvatstraat 25 te Purmerend

Meer meldingen in deze omgeving

Binnenkijken bij
Woensdag 26-11-2025
Zuivelstraat 28, 1445MJ Purmerend

112 melding
Dinsdag 25-11-2025 om 11:09
Deimtstraat, Purmerend

Onroerend goed
Vrijdag 21-11-2025
Geersstraat 58, 1445EB Purmerend

Binnenkijken bij
Vrijdag 21-11-2025
Zuivelstraat 65, 1445MK Purmerend

Binnenkijken bij
Vrijdag 21-11-2025
Achelpad 34, 1445GL Purmerend

112 melding
Donderdag 13-11-2025 om 22:44
Deimtstraat, Purmerend

112 melding
Donderdag 13-11-2025 om 06:32
Roomvatstraat, 1445LE Purmerend

Binnenkijken bij
Dinsdag 11-11-2025
Geersstraat 29, 1445EB Purmerend

Direct een e-mail ontvangen bij nieuwe meldingen in deze regio?

Meld je dan GRATIS aan voor de Oozo Alert service voor Maten- en Zuivelbuurt

Instellen

Meer nieuws in Maten- en Zuivelbuurt

Weten hoe eenvoudig het is om af te vallen? Zonder pillen en smeersels en zonder je in het zweet te werken!
Kijk op eenvoudig-afvallen.nl

© 2012 - 2025 OOZO.nl - info@oozo.nl - Gegevens verwijderen? | Disclaimer | Privacy statement