Woning Drechterland 27 Purmerend

Drechterland 27, 1447EB Purmerend

Ontvang updates voor Purmer-Zuid/Noord

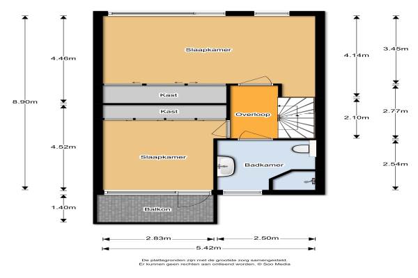
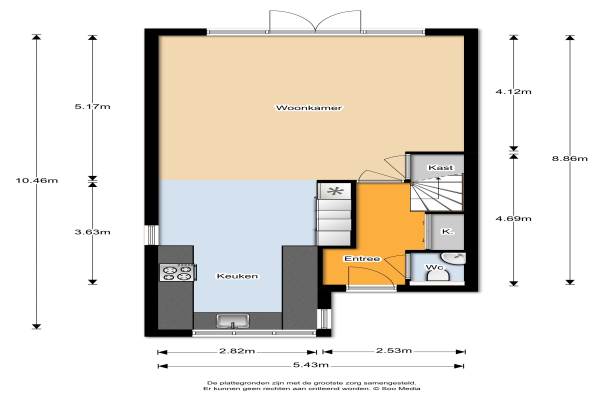
Het adres van deze woning uit 1989 is Drechterland 27 te Purmerend. Het pand heeft een oppervlakte van 130m² en een perceeloppervlakte van 177m² en heeft 5 kamers kamers waarvan 4 slaapkamers. De geschatte waarde van deze woning is € 300.000.

Bekijk alle woningen in Purmer-Zuid/Noord

Gegevens van Eengezinswoning, eindwoning

Bouwjaar
1989
Geschatte waarde
€ 300.000
Oppervlakte
130 m2
Inhoud
455 m3
Aantal kamers
5 kamers
Slaapkamers
4
Badkamers
1 badkamer en 1 apart toilet
Soort bouw
Bestaande bouw
Eigendomssituatie
Eigendom belast met erfpacht
Ligging
In woonwijk en vrij uitzicht
Tuin
Achtertuin en voortuin
Achtertuin
97 m² (16,5m diep en 5,9m breed)

Voorzieningen in de buurt

Boodschappen0,6 km
Grote supermarkt0,7 km
Cafetaria0,6 km
Restaurant1,8 km
Huisarts0,8 km
Ziekenhuis1,4 km
Kinderdagverblijf0,6 km
BSO0,7 km
Alle voorzieningen in Purmer-Zuid/Noord

Binnenkijken bij Drechterland 27 te Purmerend

Meer meldingen in deze omgeving

Nieuw bedrijf
Maart 2026
Naardermeer 118, 1447KN Purmerend

112 melding
Woensdag 11-3-2026 om 16:25
Naardermeer, Purmerend

112 melding
Dinsdag 10-3-2026 om 14:32
Gaasterland, Purmerend

112 melding
Dinsdag 10-3-2026 om 09:04
Gooimeer, Purmerend

Nieuw bedrijf
Maart 2026
Kinselmeer 23, 1447JJ Purmerend

112 melding
Donderdag 5-3-2026 om 23:13
Naardermeer, Purmerend

Binnenkijken bij
Donderdag 5-3-2026
Koggenland 47, 1447CA Purmerend

112 melding
Woensdag 4-3-2026 om 20:40
Koggenland, Purmerend

Direct een e-mail ontvangen bij nieuwe meldingen in deze regio?

Meld je dan GRATIS aan voor de Oozo Alert service voor Purmer-Zuid/Noord

Instellen

Meer nieuws in Purmer-Zuid/Noord

Weten hoe eenvoudig het is om af te vallen? Zonder pillen en smeersels en zonder je in het zweet te werken!
Kijk op eenvoudig-afvallen.nl

© 2012 - 2026 OOZO.nl - info@oozo.nl - Gegevens verwijderen? | Disclaimer | Privacy statement