Woning Waaierpalmstraat 6 Purmerend

Waaierpalmstraat 6, 1448BP Purmerend

Ontvang updates voor Azië

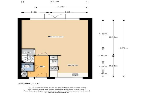
Het adres van deze woning uit 1998 is Waaierpalmstraat 6 te Purmerend. Het pand heeft een oppervlakte van 102m² en een perceeloppervlakte van 135m² en heeft 4 kamers kamers waarvan 3 slaapkamers. De geschatte waarde van deze woning is € 300.000.

Bekijk alle woningen in Azië

Gegevens van Eengezinswoning, tussenwoning

Bouwjaar
1998
Geschatte waarde
€ 300.000
Oppervlakte
102 m2
Inhoud
356 m3
Aantal kamers
4 kamers
Slaapkamers
3
Badkamers
1 badkamer en 1 apart toilet
Soort bouw
Bestaande bouw
Eigendomssituatie
Volle eigendom
Ligging
Aan rustige weg en in woonwijk
Tuin
Achtertuin en voortuin
Achtertuin
54 m² (10m diep en 5,4m breed)

Voorzieningen in de buurt

Boodschappen1,3 km
Grote supermarkt1,3 km
Cafetaria1,3 km
Restaurant1,3 km
Huisarts0,9 km
Ziekenhuis2,1 km
Kinderdagverblijf0,4 km
BSO0,4 km
Alle voorzieningen in Azië

Binnenkijken bij Waaierpalmstraat 6 te Purmerend

Meer meldingen in deze omgeving

112 melding
Woensdag 24-12-2025 om 14:10
Moessonstraat, Purmerend

Nieuw bedrijf
December 2025
Gangeslaan 182, 1448DJ Purmerend

Nieuw bedrijf
December 2025
Kabajastraat 55, 1448DT Purmerend

Binnenkijken bij
Zaterdag 20-12-2025
Wajangstraat 2, 1448DP Purmerend

112 melding
Woensdag 17-12-2025 om 08:12
Eufraatlaan, Purmerend

112 melding
Zondag 14-12-2025 om 14:59
Mayonstraat, Purmerend

112 melding
Zaterdag 13-12-2025 om 22:57
Sarongstraat, Purmerend

112 melding
Donderdag 11-12-2025 om 15:07
Java, Purmerend

Direct een e-mail ontvangen bij nieuwe meldingen in deze regio?

Meld je dan GRATIS aan voor de Oozo Alert service voor Azië

Instellen

Meer nieuws in Azië

Weten hoe eenvoudig het is om af te vallen? Zonder pillen en smeersels en zonder je in het zweet te werken!
Kijk op eenvoudig-afvallen.nl

© 2012 - 2025 OOZO.nl - info@oozo.nl - Gegevens verwijderen? | Disclaimer | Privacy statement