Woning Zwolseweg 17 Heino

Zwolseweg 17, 8141EB Heino

Ontvang updates voor Heino-West

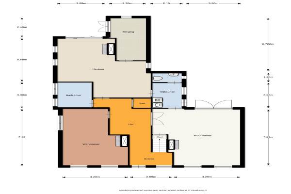
Het adres van deze woning is Zwolseweg 17 te Heino. Het pand heeft een oppervlakte van 254m² en een perceeloppervlakte van 466m² en heeft 8 kamers kamers waarvan 4 slaapkamers. De geschatte waarde van deze woning is € 395.000.

Bekijk alle woningen in Heino-West

Gegevens van Herenhuis, vrijstaande woning

Geschatte waarde
€ 395.000
Oppervlakte
254 m2
Inhoud
739 m3
Aantal kamers
8 kamers
Slaapkamers
4
Badkamers
2 badkamers en 2 aparte toiletten
Soort bouw
Bestaande bouw
Eigendomssituatie
Volle eigendom
Ligging
In centrum en in woonwijk
Tuin
Achtertuin
Achtertuin
150 m² (15m diep en 10m breed)

Voorzieningen in de buurt

Boodschappen0,7 km
Grote supermarkt0,9 km
Cafetaria0,8 km
Restaurant0,8 km
Huisarts0,8 km
Ziekenhuis6,2 km
Kinderdagverblijf0,5 km
BSO0,5 km
Alle voorzieningen in Heino-West

Binnenkijken bij Zwolseweg 17 te Heino

Meer meldingen in deze omgeving

Binnenkijken bij
Zondag 16-11-2025
de Spinde 10, 8141HB Heino

Binnenkijken bij
Dinsdag 11-11-2025
Tarweakker 35, 8141HW Heino

Binnenkijken bij
Dinsdag 11-11-2025
Koolzaadakker 9, 8141JC Heino

Nieuw bedrijf
November 2025
Dorpsstraat 23a, 8141AH Heino

Nieuw bedrijf
November 2025
Grote Bisschop 30, 8141WL Heino

Binnenkijken bij
Woensdag 29-10-2025
Vlasakker 11, 8141JB Heino

Binnenkijken bij
Vrijdag 17-10-2025
Zwolseweg 1, 8141EB Heino

Binnenkijken bij
Donderdag 2-10-2025
Grote Beukelaer 46, 8141BR Heino

Direct een e-mail ontvangen bij nieuwe meldingen in deze regio?

Meld je dan GRATIS aan voor de Oozo Alert service voor Heino-West

Instellen

Meer nieuws in Heino-West

Weten hoe eenvoudig het is om af te vallen? Zonder pillen en smeersels en zonder je in het zweet te werken!
Kijk op eenvoudig-afvallen.nl

© 2012 - 2025 OOZO.nl - info@oozo.nl - Gegevens verwijderen? | Disclaimer | Privacy statement