Woning Steenvlietstraat 40 Rilland

Steenvlietstraat 40, 4411BH Rilland

Ontvang updates voor Rilland - Kern

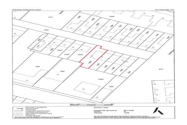
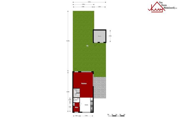
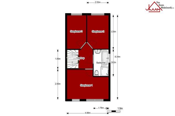
Het adres van deze woning uit 2005 is Steenvlietstraat 40 te Rilland. Het pand heeft een oppervlakte van 100m² en een perceeloppervlakte van 207m² en heeft 6 kamers kamers waarvan 3 slaapkamers. De geschatte waarde van deze woning is € 189.500.

Bekijk alle woningen in Rilland - Kern

Gegevens van Eengezinswoning, hoekwoning

Bouwjaar
2005
Geschatte waarde
€ 189.500
Oppervlakte
100 m2
Inhoud
349 m3
Aantal kamers
6 kamers
Slaapkamers
3
Badkamers
1 badkamer en 1 apart toilet
Soort bouw
Bestaande bouw
Eigendomssituatie
Volle eigendom
Ligging
In woonwijk
Tuin
Achtertuin en voortuin
Achtertuin
114 m² (0,01m diep en 0,01m breed)

Voorzieningen in de buurt

Boodschappen0,4 km
Grote supermarkt0,4 km
Cafetaria0,3 km
Restaurant5,2 km
Huisarts0,4 km
Ziekenhuis15,7 km
Kinderdagverblijf0,3 km
BSO0,3 km
Alle voorzieningen in Rilland - Kern

Binnenkijken bij Steenvlietstraat 40 te Rilland

Meer meldingen in deze omgeving

112 melding
Vrijdag 28-11-2025 om 11:39
Hoofdweg, 4411AR Rilland

Nieuw bedrijf
November 2025
Adriaan Butijnweg 7, 4411BT Rilland

Nieuw bedrijf
November 2025
Hoofdweg 25, 4411AN Rilland

112 melding
Woensdag 26-11-2025 om 13:30
Hontestraat, Rilland

112 melding
Woensdag 26-11-2025 om 08:46
Broekestraat, 4411CR Rilland

112 melding
Dinsdag 25-11-2025 om 15:25
Broekestraat, 4411CR Rilland

112 melding
Maandag 24-11-2025 om 04:37
Valckenisseweg, 4411BP Rilland

Nieuw bedrijf
November 2025
Mairestraat 1, 4411CB Rilland

Direct een e-mail ontvangen bij nieuwe meldingen in deze regio?

Meld je dan GRATIS aan voor de Oozo Alert service voor Rilland - Kern

Instellen

Meer nieuws in Rilland - Kern

Weten hoe eenvoudig het is om af te vallen? Zonder pillen en smeersels en zonder je in het zweet te werken!
Kijk op eenvoudig-afvallen.nl

© 2012 - 2025 OOZO.nl - info@oozo.nl - Gegevens verwijderen? | Disclaimer | Privacy statement