Woning Cardanuslaan 16 Doorwerth

Cardanuslaan 16, 6865HK Doorwerth

Ontvang updates voor Cardanuslaan

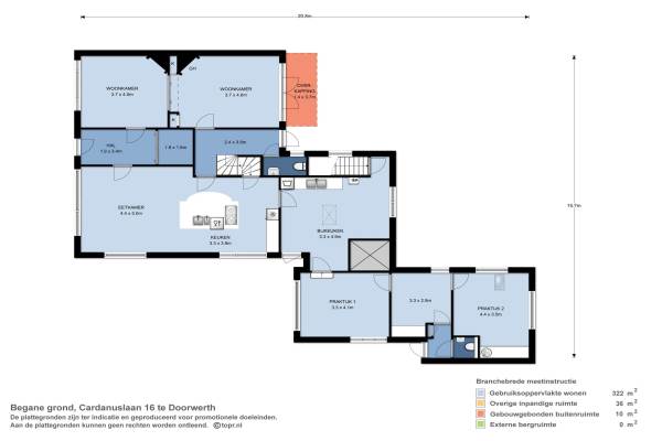
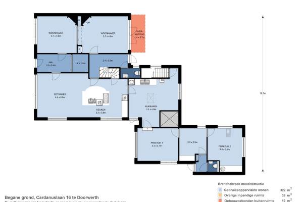
Het adres van deze woning uit 1933 is Cardanuslaan 16 te Doorwerth. Het pand heeft een oppervlakte van 322m² en een perceeloppervlakte van 479m² en heeft 9 kamers kamers waarvan 5 slaapkamers. De geschatte waarde van deze woning is € 530.000.

Bekijk alle woningen in Cardanuslaan

Gegevens van Herenhuis, 2-onder-1-kapwoning

Bouwjaar
1933
Geschatte waarde
€ 530.000
Oppervlakte
322 m2
Inhoud
1279 m3
Aantal kamers
9 kamers
Slaapkamers
5
Badkamers
2 badkamers en 1 apart toilet
Soort bouw
Bestaande bouw
Eigendomssituatie
Volle eigendom
Ligging
Aan bosrand, aan rustige weg, in woonwijk, vrij uitzicht en in bosrijke omgeving
Tuin
Achtertuin, voortuin en zijtuin
Achtertuin
285 m² (19m diep en 15m breed)

Voorzieningen in de buurt

Boodschappen0,5 km
Grote supermarkt0,5 km
Cafetaria0,5 km
Restaurant0,4 km
Huisarts0,3 km
Ziekenhuis9,7 km
Kinderdagverblijf0,3 km
BSO0,3 km
Alle voorzieningen in Cardanuslaan

Binnenkijken bij Cardanuslaan 16 te Doorwerth

Meer meldingen in deze omgeving

112 melding
Woensdag 11-3-2026 om 09:02
Waldeck Pyrmontlaan, 6865HH Doorwerth

112 melding
Woensdag 11-3-2026 om 08:42
Mecklenburglaan, 6865HD Doorwerth

112 melding
Woensdag 11-3-2026 om 08:18
Richtersweg, 6865GN Doorwerth

112 melding
Maandag 9-3-2026 om 11:35
Waldeck Pyrmontlaan, 6865HH Doorwerth

112 melding
Maandag 9-3-2026 om 11:35
Waldeck Pyrmontlaan, 6865HH Doorwerth

112 melding
Zondag 8-3-2026 om 16:05
Richtersweg, 6865GS Doorwerth

112 melding
Zondag 8-3-2026 om 15:37
Mecklenburglaan, 6865HD Doorwerth

112 melding
Zondag 8-3-2026 om 15:37
Mecklenburglaan, 6865HD Doorwerth

Direct een e-mail ontvangen bij nieuwe meldingen in deze regio?

Meld je dan GRATIS aan voor de Oozo Alert service voor Cardanuslaan

Instellen

Meer nieuws in Cardanuslaan

Weten hoe eenvoudig het is om af te vallen? Zonder pillen en smeersels en zonder je in het zweet te werken!
Kijk op eenvoudig-afvallen.nl

© 2012 - 2026 OOZO.nl - info@oozo.nl - Gegevens verwijderen? | Disclaimer | Privacy statement