Woning Beethovenlaan 16 Doorwerth

Beethovenlaan 16, 6865EA Doorwerth

Ontvang updates voor Clusterwoningen

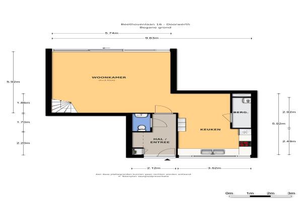
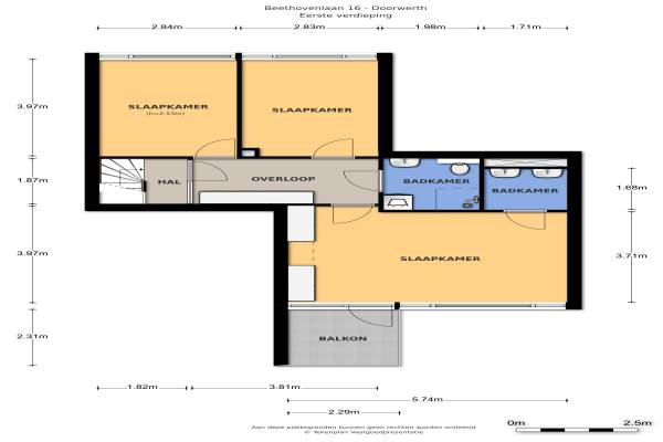
Het adres van deze woning uit 1976 is Beethovenlaan 16 te Doorwerth. Het pand heeft een oppervlakte van 128m² en een perceeloppervlakte van 198m² en heeft 4 kamers kamers waarvan 3 slaapkamers. De geschatte waarde van deze woning is € 265.000.

Bekijk alle woningen in Clusterwoningen

Gegevens van Eengezinswoning, geschakelde woning

Bouwjaar
1976
Geschatte waarde
€ 265.000
Oppervlakte
128 m2
Inhoud
437 m3
Aantal kamers
4 kamers
Slaapkamers
3
Badkamers
2 badkamers en 1 apart toilet
Soort bouw
Bestaande bouw
Eigendomssituatie
Volle eigendom
Ligging
Aan rustige weg, in woonwijk en in bosrijke omgeving
Tuin
Achtertuin en voortuin
Achtertuin
91 m² (13m diep en 7m breed)

Voorzieningen in de buurt

Boodschappen0,5 km
Grote supermarkt0,5 km
Cafetaria0,5 km
Restaurant0,6 km
Huisarts0,5 km
Ziekenhuis9,9 km
Kinderdagverblijf0,4 km
BSO0,5 km
Alle voorzieningen in Clusterwoningen

Binnenkijken bij Beethovenlaan 16 te Doorwerth

Meer meldingen in deze omgeving

112 melding
Donderdag 19-3-2026 om 04:05
Jagerslaan, Doorwerth

112 melding
Woensdag 18-3-2026 om 15:17
Beethovenlaan, 6865EB Doorwerth

112 melding
Woensdag 18-3-2026 om 14:32
van der Molenallee, 6865CB Doorwerth

112 melding
Woensdag 18-3-2026 om 14:31
Mozartlaan, 6865GB Doorwerth

112 melding
Maandag 16-3-2026 om 11:57
Bachlaan, 6865EV Doorwerth

112 melding
Zondag 15-3-2026 om 17:29
Mozartlaan, 6865GB Doorwerth

112 melding
Zondag 15-3-2026 om 17:18
van der Molenallee, 6865CB Doorwerth

112 melding
Donderdag 12-3-2026 om 17:41
Bachlaan, 6865ER Doorwerth

Direct een e-mail ontvangen bij nieuwe meldingen in deze regio?

Meld je dan GRATIS aan voor de Oozo Alert service voor Clusterwoningen

Instellen

Meer nieuws in Clusterwoningen

Weten hoe eenvoudig het is om af te vallen? Zonder pillen en smeersels en zonder je in het zweet te werken!
Kijk op eenvoudig-afvallen.nl

© 2012 - 2026 OOZO.nl - info@oozo.nl - Gegevens verwijderen? | Disclaimer | Privacy statement