Woning Koningserf 13 Heelsum

Koningserf 13, 6866ES Heelsum

Ontvang updates voor Heidestein

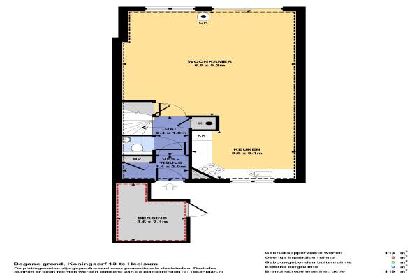
Het adres van deze woning uit 1984 is Koningserf 13 te Heelsum. Het pand heeft een oppervlakte van 113m² en een perceeloppervlakte van 143m² en heeft 5 kamers kamers waarvan 4 slaapkamers. De geschatte waarde van deze woning is € 220.000.

Bekijk alle woningen in Heidestein

Gegevens van Eengezinswoning, tussenwoning

Bouwjaar
1984
Geschatte waarde
€ 220.000
Oppervlakte
113 m2
Inhoud
325 m3
Aantal kamers
5 kamers
Slaapkamers
4
Badkamers
1 apart toilet
Soort bouw
Bestaande bouw
Eigendomssituatie
Volle eigendom
Ligging
Aan rustige weg, in woonwijk, beschutte ligging en in bosrijke omgeving
Tuin
Achtertuin
Achtertuin
M² (8m diep en 5,9m breed)

Voorzieningen in de buurt

Boodschappen0,8 km
Grote supermarkt0,8 km
Cafetaria0,7 km
Restaurant0,7 km
Huisarts0,8 km
Ziekenhuis6,7 km
Kinderdagverblijf0,4 km
BSO0,4 km
Alle voorzieningen in Heidestein

Binnenkijken bij Koningserf 13 te Heelsum

Meer meldingen in deze omgeving

112 melding
Zaterdag 15-11-2025 om 19:37
Dorrestijn-plantsoen, 6866EB Heelsum

112 melding
Vrijdag 14-11-2025 om 12:37
Bernardus Arpsstraat, 6866AM Heelsum

112 melding
Vrijdag 14-11-2025 om 12:37
Bernardus Arpsstraat, 6866AM Heelsum

112 melding
Vrijdag 14-11-2025 om 12:37
Bernardus Arpsstraat, 6866AM Heelsum

112 melding
Vrijdag 14-11-2025 om 10:35
Bernardus Arpsstraat, 6866AM Heelsum

Binnenkijken bij
Vrijdag 14-11-2025
Bart Crumstraat 4A, 6866AC Heelsum

112 melding
Donderdag 13-11-2025 om 10:20
Tamboer, 6866EH Heelsum

112 melding
Woensdag 12-11-2025 om 14:09
Heidesteinlaan, 6866AE Heelsum

Direct een e-mail ontvangen bij nieuwe meldingen in deze regio?

Meld je dan GRATIS aan voor de Oozo Alert service voor Heidestein

Instellen

Meer nieuws in Heidestein

Weten hoe eenvoudig het is om af te vallen? Zonder pillen en smeersels en zonder je in het zweet te werken!
Kijk op eenvoudig-afvallen.nl

© 2012 - 2025 OOZO.nl - info@oozo.nl - Gegevens verwijderen? | Disclaimer | Privacy statement