Woning Pastoor Bruggemanlaan 19 Oosterbeek

Pastoor Bruggemanlaan 19, 6861GR Oosterbeek

Ontvang updates voor Dennenkamp

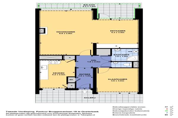
Het adres van deze woning uit 1971 is Pastoor Bruggemanlaan 19 te Oosterbeek. Het pand heeft een oppervlakte van 77m² en heeft 3 kamers kamers waarvan 1 slaapkamers. De geschatte waarde van deze woning is € 185.000.

Bekijk alle woningen in Dennenkamp

Gegevens van Galerijflat (appartement)

Bouwjaar
1971
Geschatte waarde
€ 185.000
Oppervlakte
77 m2
Inhoud
200 m3
Aantal kamers
3 kamers
Slaapkamers
1
Badkamers
1 badkamer en 1 apart toilet
Soort bouw
Bestaande bouw
Eigendomssituatie
Volle eigendom
Ligging
In centrum en vrij uitzicht

Voorzieningen in de buurt

Boodschappen0,6 km
Grote supermarkt0,5 km
Cafetaria0,6 km
Restaurant0,5 km
Huisarts0,5 km
Ziekenhuis6,2 km
Kinderdagverblijf0,3 km
BSO0,3 km
Alle voorzieningen in Dennenkamp

Binnenkijken bij Pastoor Bruggemanlaan 19 te Oosterbeek

Meer meldingen in deze omgeving

112 melding
Vrijdag 10-10-2025 om 08:22
A.Weeninklaan, Oosterbeek

Binnenkijken bij
Donderdag 9-10-2025
Lebretweg 70, 6861ZZ Oosterbeek

Binnenkijken bij
Donderdag 9-10-2025
Generaal Urquhartlaan 43, 6861GE Oosterbeek

Nieuw bedrijf
Oktober 2025
Utrechtseweg 157, 6862AH Oosterbeek

Nieuw bedrijf
Oktober 2025
Lebretweg 23, 6861ZX Oosterbeek

112 melding
Woensdag 8-10-2025 om 10:19
Generaal Urquhartlaan, Oosterbeek

112 melding
Dinsdag 7-10-2025 om 19:54
Generaal Urquhartlaan, 6861GE Oosterbeek

112 melding
Dinsdag 7-10-2025 om 15:49
Oude Kloostertuin, 6861GV Oosterbeek

Direct een e-mail ontvangen bij nieuwe meldingen in deze regio?

Meld je dan GRATIS aan voor de Oozo Alert service voor Dennenkamp

Instellen

Meer nieuws in Dennenkamp

Weten hoe eenvoudig het is om af te vallen? Zonder pillen en smeersels en zonder je in het zweet te werken!
Kijk op eenvoudig-afvallen.nl

© 2012 - 2025 OOZO.nl - info@oozo.nl - Gegevens verwijderen? | Disclaimer | Privacy statement