Woning Steijnweg 40 Oosterbeek

Steijnweg 40, 6861DH Oosterbeek

Ontvang updates voor Transvaal

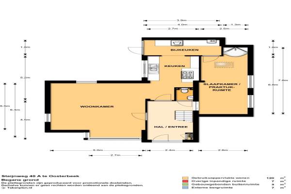
Het adres van deze woning uit 1975 is Steijnweg 40 te Oosterbeek. Het pand heeft een oppervlakte van 120m² en een perceeloppervlakte van 245m² en heeft 4 kamers kamers waarvan 3 slaapkamers. De geschatte waarde van deze woning is € 469.000.

Bekijk alle woningen in Transvaal

Gegevens van Eengezinswoning, vrijstaande woning

Bouwjaar
1975
Geschatte waarde
€ 469.000
Oppervlakte
120 m2
Inhoud
400 m3
Aantal kamers
4 kamers
Slaapkamers
3
Badkamers
1 badkamer en 1 apart toilet
Soort bouw
Bestaande bouw
Eigendomssituatie
Volle eigendom
Ligging
Aan rustige weg en in woonwijk
Tuin
Tuin rondom

Voorzieningen in de buurt

Boodschappen0,8 km
Grote supermarkt0,9 km
Cafetaria0,6 km
Restaurant0,5 km
Huisarts0,6 km
Ziekenhuis6,9 km
Kinderdagverblijf0,7 km
BSO0,7 km
Alle voorzieningen in Transvaal

Binnenkijken bij Steijnweg 40 te Oosterbeek

Meer meldingen in deze omgeving

112 melding
Maandag 1-12-2025 om 09:28
Utrechtseweg, 6862AJ Oosterbeek

112 melding
Maandag 1-12-2025 om 09:07
Paul Krugerstraat, 6861CT Oosterbeek

112 melding
Zondag 30-11-2025 om 16:27
Utrechtseweg, 6862AJ Oosterbeek

112 melding
Zaterdag 29-11-2025 om 16:38
Ommershoflaan, 6861CK Oosterbeek

112 melding
Zaterdag 29-11-2025 om 16:38
Ommershoflaan, 6861CK Oosterbeek

112 melding
Zaterdag 29-11-2025 om 16:29
Ommershoflaan, 6861CK Oosterbeek

112 melding
Zaterdag 29-11-2025 om 10:40
Paul Krugerstraat, 6861CT Oosterbeek

112 melding
Maandag 24-11-2025 om 08:54
Utrechtseweg, 6862AJ Oosterbeek

Direct een e-mail ontvangen bij nieuwe meldingen in deze regio?

Meld je dan GRATIS aan voor de Oozo Alert service voor Transvaal

Instellen

Meer nieuws in Transvaal

Weten hoe eenvoudig het is om af te vallen? Zonder pillen en smeersels en zonder je in het zweet te werken!
Kijk op eenvoudig-afvallen.nl

© 2012 - 2025 OOZO.nl - info@oozo.nl - Gegevens verwijderen? | Disclaimer | Privacy statement