Woning Enkweg 6 Renkum

Enkweg 6, 6871GP Renkum

Ontvang updates voor De Enk

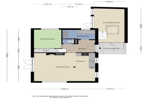
Het adres van deze woning uit 1976 is Enkweg 6 te Renkum. Het pand heeft een oppervlakte van 104m² en een perceeloppervlakte van 233m² en heeft 4 kamers kamers waarvan 3 slaapkamers. De geschatte waarde van deze woning is € 629.000.

Bekijk alle woningen in De Enk

Gegevens van Eengezinswoning, vrijstaande woning

Bouwjaar
1976
Geschatte waarde
€ 629.000
Oppervlakte
104 m2
Inhoud
488 m3
Aantal kamers
4 kamers
Slaapkamers
3
Badkamers
1 badkamer en 1 apart toilet
Soort bouw
Bestaande bouw
Eigendomssituatie
Volle eigendom
Ligging
Aan rustige weg en in woonwijk
Tuin
Achtertuin en tuin rondom
Achtertuin
32 m² (4,00 meter diep en 8,00 meter breed)

Voorzieningen in de buurt

Boodschappen0,5 km
Grote supermarkt0,8 km
Cafetaria0,3 km
Restaurant0,5 km
Huisarts0,4 km
Ziekenhuis5,7 km
Kinderdagverblijf0,4 km
BSO0,3 km
Alle voorzieningen in De Enk

Binnenkijken bij Enkweg 6 te Renkum

Meer meldingen in deze omgeving

Binnenkijken bij
Vrijdag 10-10-2025
Enkweg 1, 6871GN Renkum

112 melding
Dinsdag 7-10-2025 om 09:49
Meester van Rennesweg, Renkum

112 melding
Maandag 6-10-2025 om 13:15
Hogenkampseweg, 6871JJ Renkum

112 melding
Maandag 6-10-2025 om 13:09
Jan Peelenplantsoen, 6871GV Renkum

112 melding
Maandag 6-10-2025 om 12:37
Van Ingenweg, 6871ES Renkum

112 melding
Maandag 6-10-2025 om 12:35
Bakkershaag, 6871HS Renkum

112 melding
Maandag 6-10-2025 om 11:08
Hogenkampseweg, 6871JJ Renkum

112 melding
Maandag 6-10-2025 om 06:52
Reijmerweg, 6871HA Renkum

Direct een e-mail ontvangen bij nieuwe meldingen in deze regio?

Meld je dan GRATIS aan voor de Oozo Alert service voor De Enk

Instellen

Meer nieuws in De Enk

Weten hoe eenvoudig het is om af te vallen? Zonder pillen en smeersels en zonder je in het zweet te werken!
Kijk op eenvoudig-afvallen.nl

© 2012 - 2025 OOZO.nl - info@oozo.nl - Gegevens verwijderen? | Disclaimer | Privacy statement