Woning Hoofdstraat 5 Tolkamer

Hoofdstraat 5, 6916AA Tolkamer

Ontvang updates voor Tolkamer

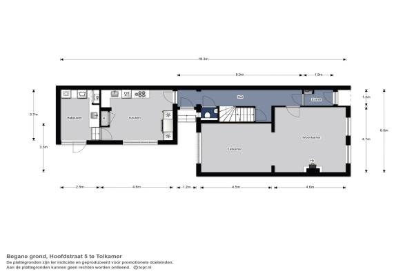
Het adres van deze woning uit 1912 is Hoofdstraat 5 te Tolkamer. Het pand heeft een oppervlakte van 180m² en een perceeloppervlakte van 315m² en heeft 5 kamers kamers waarvan 4 slaapkamers. De geschatte waarde van deze woning is € 349.000.

Bekijk alle woningen in Tolkamer

Gegevens van Herenhuis, 2-onder-1-kapwoning

Bouwjaar
1912
Geschatte waarde
€ 349.000
Oppervlakte
180 m2
Inhoud
815 m3
Aantal kamers
5 kamers
Slaapkamers
4
Badkamers
1 badkamer en 1 apart toilet
Soort bouw
Bestaande bouw
Eigendomssituatie
Volle eigendom
Ligging
In centrum en open ligging
Tuin
Achtertuin
Achtertuin
136 m² (17m diep en 8m breed)

Voorzieningen in de buurt

Binnenkijken bij Hoofdstraat 5 te Tolkamer

Meer meldingen in deze omgeving

112 melding
Dinsdag 28-4-2026 om 14:44
Vierkenshof & 's-Gravenwaard, 6916 Tolkamer

112 melding
Dinsdag 28-4-2026 om 12:45
Tolstraat, Tolkamer

112 melding
Zondag 26-4-2026 om 12:40
Boterdijk, 6916BX Tolkamer

112 melding
Zondag 26-4-2026 om 12:40
Boterdijk, 6916BX Tolkamer

112 melding
Zondag 26-4-2026 om 10:24
de Vaargeul, 6916DD Tolkamer

112 melding
Zondag 26-4-2026 om 10:24
de Vaargeul, 6916DD Tolkamer

112 melding
Vrijdag 24-4-2026 om 07:43
Europa-kade, 6916BG Tolkamer

112 melding
Vrijdag 24-4-2026 om 07:43
Europa-kade, 6916BG Tolkamer

Direct een e-mail ontvangen bij nieuwe meldingen in deze regio?

Meld je dan GRATIS aan voor de Oozo Alert service voor Tolkamer

Instellen

Meer nieuws in Tolkamer

Weten hoe eenvoudig het is om af te vallen? Zonder pillen en smeersels en zonder je in het zweet te werken!
Kijk op eenvoudig-afvallen.nl

© 2012 - 2026 OOZO.nl - info@oozo.nl - Gegevens verwijderen? | Disclaimer | Privacy statement