Woning Geestbrugweg 63 Rijswijk

Geestbrugweg 63, 2281CG Rijswijk

Ontvang updates voor Cromvliet

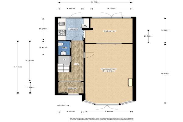
Het adres van deze woning uit 1926 is Geestbrugweg 63 te Rijswijk. Het pand heeft een oppervlakte van 170m² en een perceeloppervlakte van 148m² en heeft 7 kamers kamers waarvan 4 slaapkamers. De geschatte waarde van deze woning is € 599.000.

Bekijk alle woningen in Cromvliet

Gegevens van Herenhuis, tussenwoning

Bouwjaar
1926
Geschatte waarde
€ 599.000
Oppervlakte
170 m2
Inhoud
617 m3
Aantal kamers
7 kamers
Slaapkamers
4
Badkamers
2 badkamers en 2 aparte toiletten
Soort bouw
Bestaande bouw
Eigendomssituatie
Volle eigendom
Ligging
In woonwijk en vrij uitzicht
Tuin
Achtertuin en voortuin
Achtertuin
41 m² (7,5m diep en 5,5m breed)

Voorzieningen in de buurt

Boodschappen0,3 km
Grote supermarkt0,5 km
Cafetaria0,3 km
Restaurant0,3 km
Huisarts0,5 km
Ziekenhuis1,1 km
Kinderdagverblijf0,2 km
BSO0,2 km
Alle voorzieningen in Cromvliet

Binnenkijken bij Geestbrugweg 63 te Rijswijk

Meer meldingen in deze omgeving

Binnenkijken bij
Zondag 1-2-2026
Caan van Necklaan 90, 2281BM Rijswijk (ZH)

112 melding
Vrijdag 30-1-2026 om 01:33
Caan van Necklaan, Rijswijk

Binnenkijken bij
Dinsdag 27-1-2026
Bilderdijklaan 11, 2281SM Rijswijk (ZH)

112 melding
Zaterdag 24-1-2026 om 10:00
Caan van Necklaan, Rijswijk

112 melding
Zaterdag 24-1-2026 om 09:47
Caan van Necklaan, Rijswijk

Binnenkijken bij
Vrijdag 23-1-2026
Haagweg 101, 2281AD Rijswijk (ZH)

Binnenkijken bij
Donderdag 22-1-2026
Caan van Necklaan 255, 2281BH Rijswijk (ZH)

Nieuw bedrijf
Januari 2026
Da Costalaan 25, 2281SC Rijswijk

Direct een e-mail ontvangen bij nieuwe meldingen in deze regio?

Meld je dan GRATIS aan voor de Oozo Alert service voor Cromvliet

Instellen

Meer nieuws in Cromvliet

Weten hoe eenvoudig het is om af te vallen? Zonder pillen en smeersels en zonder je in het zweet te werken!
Kijk op eenvoudig-afvallen.nl

© 2012 - 2026 OOZO.nl - info@oozo.nl - Gegevens verwijderen? | Disclaimer | Privacy statement