Woning Frederiklaan 39 Rijswijk

Frederiklaan 39, 2281XM Rijswijk

Ontvang updates voor Leeuwendaal

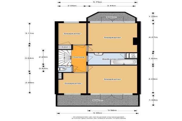
Het adres van deze woning uit 1920 is Frederiklaan 39 te Rijswijk. Het pand heeft een oppervlakte van 175m² en een perceeloppervlakte van 250m² en heeft 7 kamers kamers waarvan 6 slaapkamers. De geschatte waarde van deze woning is € 650.000.

Bekijk alle woningen in Leeuwendaal

Gegevens van Herenhuis, tussenwoning

Bouwjaar
1920
Geschatte waarde
€ 650.000
Oppervlakte
175 m2
Inhoud
655 m3
Aantal kamers
7 kamers
Slaapkamers
6
Badkamers
2 badkamers en 2 aparte toiletten
Soort bouw
Bestaande bouw
Eigendomssituatie
Volle eigendom
Ligging
In woonwijk
Tuin
Achtertuin en voortuin
Achtertuin
146 m² (23,33m diep en 6,25m breed)

Voorzieningen in de buurt

Boodschappen0,4 km
Grote supermarkt0,5 km
Cafetaria0,4 km
Restaurant0,4 km
Huisarts0,4 km
Ziekenhuis1,2 km
Kinderdagverblijf0,6 km
BSO0,6 km
Alle voorzieningen in Leeuwendaal

Binnenkijken bij Frederiklaan 39 te Rijswijk

Meer meldingen in deze omgeving

112 melding
Dinsdag 21-10-2025 om 06:48
Geestbrugkade, Rijswijk

Binnenkijken bij
Zondag 19-10-2025
Geestbrugweg 126, 2281CS Rijswijk (ZH)

Binnenkijken bij
Zondag 19-10-2025
Nassaukade 1F003, 2281XA Rijswijk (ZH)

112 melding
Zondag 19-10-2025 om 04:39
Dillenburglaan, Rijswijk

Nieuw bedrijf
Oktober 2025
Regentesselaan 55, 2281VB Rijswijk

Binnenkijken bij
Zaterdag 11-10-2025
Nassaukade 25, 2281XB Rijswijk (ZH)

Nieuw bedrijf
Oktober 2025
Prins Hendriklaan 22, 2281EC Rijswijk

Nieuw bedrijf
Oktober 2025
Geestbrugweg 108, 2281CR Rijswijk

Direct een e-mail ontvangen bij nieuwe meldingen in deze regio?

Meld je dan GRATIS aan voor de Oozo Alert service voor Leeuwendaal

Instellen

Meer nieuws in Leeuwendaal

Weten hoe eenvoudig het is om af te vallen? Zonder pillen en smeersels en zonder je in het zweet te werken!
Kijk op eenvoudig-afvallen.nl

© 2012 - 2025 OOZO.nl - info@oozo.nl - Gegevens verwijderen? | Disclaimer | Privacy statement