Woning Jacob van der Wielelaan 22 Rijswijk

Jacob van der Wielelaan 22, 2283CV Rijswijk

Ontvang updates voor Huis te Lande

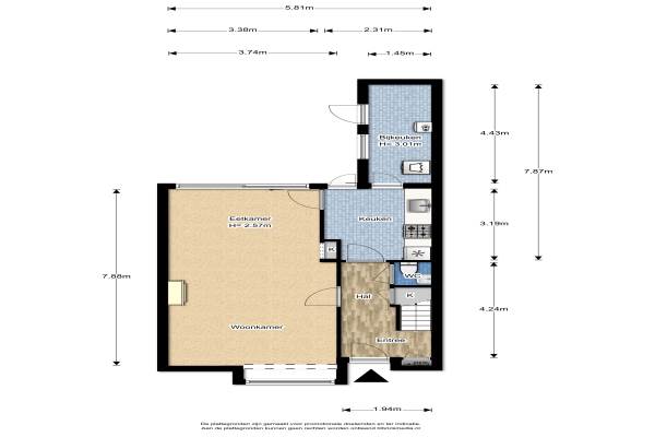
Het adres van deze woning uit 1959 is Jacob van der Wielelaan 22 te Rijswijk. Het pand heeft een oppervlakte van 117m² en een perceeloppervlakte van 166m² en heeft 5 kamers kamers waarvan 4 slaapkamers. De geschatte waarde van deze woning is € 359.000.

Bekijk alle woningen in Huis te Lande

Gegevens van Eengezinswoning, tussenwoning

Bouwjaar
1959
Geschatte waarde
€ 359.000
Oppervlakte
117 m2
Inhoud
386 m3
Aantal kamers
5 kamers
Slaapkamers
4
Badkamers
1 badkamer en 1 apart toilet
Soort bouw
Bestaande bouw
Eigendomssituatie
Volle eigendom
Ligging
Aan rustige weg, in woonwijk en vrij uitzicht
Tuin
Achtertuin en voortuin
Achtertuin
75 m² (12,56m diep en 6m breed)

Voorzieningen in de buurt

Boodschappen0,6 km
Grote supermarkt0,6 km
Cafetaria0,6 km
Restaurant0,5 km
Huisarts0,5 km
Ziekenhuis3,7 km
Kinderdagverblijf0,3 km
BSO0,3 km
Alle voorzieningen in Huis te Lande

Binnenkijken bij Jacob van der Wielelaan 22 te Rijswijk

Meer meldingen in deze omgeving

Binnenkijken bij
Vrijdag 27-3-2026
Huis te Landelaan 230, 2283SM Rijswijk (ZH)

Nieuw bedrijf
Maart 2026
Jacob van der Wielelaan 30, 2283CV Rijswijk

Binnenkijken bij
Dinsdag 24-3-2026
Bous de Jongpark 78, 2283TK Rijswijk (ZH)

Binnenkijken bij
Maandag 23-3-2026
Labouchèrelaan 54, 2283EJ Rijswijk (ZH)

Binnenkijken bij
Zondag 15-3-2026
Huis te Landelaan 174, 2283SL Rijswijk (ZH)

Binnenkijken bij
Zaterdag 14-3-2026
Huis te Landelaan 408, 2283ST Rijswijk (ZH)

112 melding
Dinsdag 10-3-2026 om 19:03
Jacob van der Wielelaan, 2283CV Rijswijk

Nieuw bedrijf
Maart 2026
Dokter van der Knaaplaan 13, 2283CW Rijswijk

Direct een e-mail ontvangen bij nieuwe meldingen in deze regio?

Meld je dan GRATIS aan voor de Oozo Alert service voor Huis te Lande

Instellen

Meer nieuws in Huis te Lande

Weten hoe eenvoudig het is om af te vallen? Zonder pillen en smeersels en zonder je in het zweet te werken!
Kijk op eenvoudig-afvallen.nl

© 2012 - 2026 OOZO.nl - info@oozo.nl - Gegevens verwijderen? | Disclaimer | Privacy statement