Woning Dr H. Colijnlaan 15 Rijswijk

Dr H. Colijnlaan 15, 2283XA Rijswijk

Ontvang updates voor Te Werve

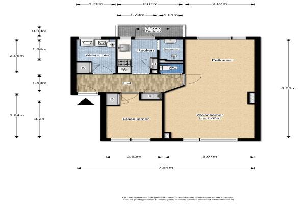
Het adres van deze woning uit 1957 is Dr H. Colijnlaan 15 te Rijswijk. Het pand heeft een oppervlakte van 63m² en heeft 4 kamers kamers waarvan 2 slaapkamers. De geschatte waarde van deze woning is € 165.000.

Bekijk alle woningen in Te Werve

Gegevens van Portiekflat (appartement)

Bouwjaar
1957
Geschatte waarde
€ 165.000
Oppervlakte
63 m2
Inhoud
207 m3
Aantal kamers
4 kamers
Slaapkamers
2
Badkamers
1 badkamer
Soort bouw
Bestaande bouw
Eigendomssituatie
Volle eigendom
Ligging
Aan rustige weg en in woonwijk

Voorzieningen in de buurt

Boodschappen0,5 km
Grote supermarkt0,5 km
Cafetaria0,5 km
Restaurant0,5 km
Huisarts0,6 km
Ziekenhuis3,0 km
Kinderdagverblijf0,3 km
BSO0,2 km
Alle voorzieningen in Te Werve

Binnenkijken bij Dr H. Colijnlaan 15 te Rijswijk

Meer meldingen in deze omgeving

Binnenkijken bij
Dinsdag 14-4-2026
Generaal Spoorlaan 367, 2283GJ Rijswijk (ZH)

112 melding
Maandag 13-4-2026 om 08:40
Marius Bauerstraat, Rijswijk

112 melding
Maandag 13-4-2026 om 08:37
Marius Bauerstraat, Rijswijk

112 melding
Maandag 13-4-2026 om 08:37
Marius Bauerstraat, Rijswijk

Binnenkijken bij
Vrijdag 10-4-2026
Dr H. Colijnlaan 149, 2283XE Rijswijk (ZH)

Binnenkijken bij
Vrijdag 10-4-2026
Generaal Spoorlaan 103, 2283GD Rijswijk (ZH)

Nieuw bedrijf
April 2026
Dick de Hoogstraat 45, 2283LA Rijswijk

Nieuw bedrijf
April 2026
Generaal Berenschotlaan 211, 2283JM Rijswijk

Direct een e-mail ontvangen bij nieuwe meldingen in deze regio?

Meld je dan GRATIS aan voor de Oozo Alert service voor Te Werve

Instellen

Meer nieuws in Te Werve

Weten hoe eenvoudig het is om af te vallen? Zonder pillen en smeersels en zonder je in het zweet te werken!
Kijk op eenvoudig-afvallen.nl

© 2012 - 2026 OOZO.nl - info@oozo.nl - Gegevens verwijderen? | Disclaimer | Privacy statement