Woning Hambeek 72 Roermond

Hambeek 72, 6041NH Roermond

Ontvang updates voor Roer-Roer-Zuid

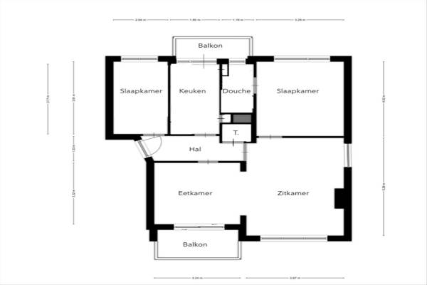
Het adres van deze woning uit 1956 is Hambeek 72 te Roermond. Het pand heeft een oppervlakte van 69m² en heeft 4 kamers kamers waarvan 2 slaapkamers. De geschatte waarde van deze woning is € 225.000.

Bekijk alle woningen in Roer-Roer-Zuid

Gegevens van Appartement

Bouwjaar
1956
Geschatte waarde
€ 225.000
Oppervlakte
69 m2
Inhoud
243 m3
Aantal kamers
4 kamers
Slaapkamers
2
Badkamers
1 badkamer en 1 apart toilet
Soort bouw
Bestaande bouw
Eigendomssituatie
Volle eigendom
Ligging
Aan park, aan rustige weg, in woonwijk en vrij uitzicht
Tuin
Balkon aanwezig

Voorzieningen in de buurt

Boodschappen1,1 km
Grote supermarkt1,1 km
Cafetaria1,1 km
Restaurant0,9 km
Huisarts1,5 km
Ziekenhuis2,6 km
Kinderdagverblijf0,5 km
BSO0,8 km
Alle voorzieningen in Roer-Roer-Zuid

Binnenkijken bij Hambeek 72 te Roermond

Meer meldingen in deze omgeving

112 melding
Zondag 15-2-2026 om 21:03
Burgemeester Geuljanslaan, Roermond

112 melding
Zondag 15-2-2026 om 21:02
Burgemeester Geuljanslaan, Roermond

Binnenkijken bij
Vrijdag 13-2-2026
Hambeek 13, 6041ND Roermond

Binnenkijken bij
Maandag 9-2-2026
Op de Meuleberg 22, 6041NK Roermond

112 melding
Maandag 2-2-2026 om 05:56
Burgemeester Geuljanslaan, Roermond

112 melding
Maandag 2-2-2026 om 05:54
Burgemeester Geuljanslaan, Roermond

112 melding
Maandag 2-2-2026 om 05:36
Burgemeester Geuljanslaan, Roermond

Binnenkijken bij
Dinsdag 27-1-2026
Hattem 122, 6041SH Roermond

Direct een e-mail ontvangen bij nieuwe meldingen in deze regio?

Meld je dan GRATIS aan voor de Oozo Alert service voor Roer-Roer-Zuid

Instellen

Meer nieuws in Roer-Roer-Zuid

Weten hoe eenvoudig het is om af te vallen? Zonder pillen en smeersels en zonder je in het zweet te werken!
Kijk op eenvoudig-afvallen.nl

© 2012 - 2026 OOZO.nl - info@oozo.nl - Gegevens verwijderen? | Disclaimer | Privacy statement