Woning Van Galenstraat 4 Roermond

Van Galenstraat 4, 6045XN Roermond

Ontvang updates voor De Kemp

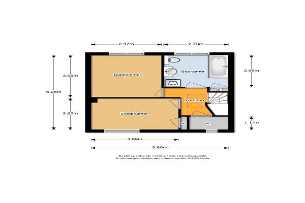
Het adres van deze woning uit 1952 is Van Galenstraat 4 te Roermond. Het pand heeft een oppervlakte van 95m² en een perceeloppervlakte van 138m² en heeft 6 kamers kamers waarvan 2 slaapkamers. De geschatte waarde van deze woning is € 129.000.

Bekijk alle woningen in De Kemp

Gegevens van Eengezinswoning, tussenwoning

Bouwjaar
1952
Geschatte waarde
€ 129.000
Oppervlakte
95 m2
Inhoud
355 m3
Aantal kamers
6 kamers
Slaapkamers
2
Badkamers
1 badkamer en 1 apart toilet
Soort bouw
Bestaande bouw
Eigendomssituatie
Volle eigendom
Ligging
Aan rustige weg en in woonwijk
Tuin
Achtertuin en voortuin
Achtertuin
31 m² (8m diep en 5,5m breed)

Voorzieningen in de buurt

Boodschappen0,3 km
Grote supermarkt0,3 km
Cafetaria0,2 km
Restaurant0,4 km
Huisarts0,8 km
Ziekenhuis2,0 km
Kinderdagverblijf0,4 km
BSO0,8 km
Alle voorzieningen in De Kemp

Binnenkijken bij Van Galenstraat 4 te Roermond

Meer meldingen in deze omgeving

112 melding
Dinsdag 10-3-2026 om 08:34
Pastoor Adamsstraat, 6045XV Roermond

112 melding
Zaterdag 28-2-2026 om 21:27
Karel Doormanstraat, Roermond

112 melding
Dinsdag 24-2-2026 om 14:35
Gebroeders Pijpersstraat, 6045VR Roermond

112 melding
Dinsdag 24-2-2026 om 14:35
Gebroeders Pijpersstraat, Roermond

112 melding
Dinsdag 24-2-2026 om 14:34
Gebroeders Pijpersstraat, Roermond

112 melding
Dinsdag 24-2-2026 om 14:33
Gebroeders Pijpersstraat, Roermond

112 melding
Maandag 16-2-2026 om 19:52
Witte de Withstraat, 6045XT Roermond

112 melding
Woensdag 11-2-2026 om 20:40
Antillenstraat, Roermond

Direct een e-mail ontvangen bij nieuwe meldingen in deze regio?

Meld je dan GRATIS aan voor de Oozo Alert service voor De Kemp

Instellen

Meer nieuws in De Kemp

Weten hoe eenvoudig het is om af te vallen? Zonder pillen en smeersels en zonder je in het zweet te werken!
Kijk op eenvoudig-afvallen.nl

© 2012 - 2026 OOZO.nl - info@oozo.nl - Gegevens verwijderen? | Disclaimer | Privacy statement