Woning Pater Geraedtsstraat 42 Swalmen

Pater Geraedtsstraat 42, 6071VW Swalmen

Ontvang updates voor Martin Giessen-Bosstraat

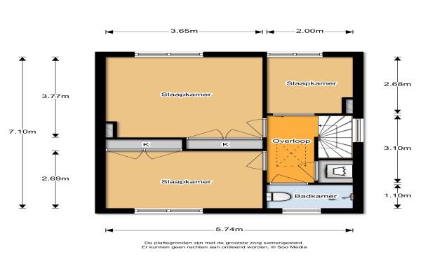
Het adres van deze woning uit 1966 is Pater Geraedtsstraat 42 te Swalmen. Het pand heeft een oppervlakte van 82m² en een perceeloppervlakte van 280m² en heeft 7 kamers kamers waarvan 3 slaapkamers. De geschatte waarde van deze woning is € 140.000.

Bekijk alle woningen in Martin Giessen-Bosstraat

Gegevens van Eengezinswoning, hoekwoning

Bouwjaar
1966
Geschatte waarde
€ 140.000
Oppervlakte
82 m2
Inhoud
370 m3
Aantal kamers
7 kamers
Slaapkamers
3
Badkamers
1 badkamer en 1 apart toilet
Soort bouw
Bestaande bouw
Eigendomssituatie
Volle eigendom
Ligging
Aan rustige weg en in woonwijk
Tuin
Achtertuin, voortuin en zijtuin
Achtertuin
236 m² (10,5m diep en 9,5m breed)

Voorzieningen in de buurt

Boodschappen0,7 km
Grote supermarkt1,2 km
Cafetaria0,4 km
Restaurant0,7 km
Huisarts1,3 km
Ziekenhuis6,3 km
Kinderdagverblijf0,5 km
BSO0,5 km
Alle voorzieningen in Martin Giessen-Bosstraat

Binnenkijken bij Pater Geraedtsstraat 42 te Swalmen

Meer meldingen in deze omgeving

112 melding
Zondag 28-12-2025 om 11:21
Sint Sebastianusstraat, 6071VM Swalmen

Nieuw bedrijf
December 2025
Voorveld 2D, 6071RE Swalmen

Binnenkijken bij
Woensdag 24-12-2025
Bosstraat 73B, 6071XT Swalmen

Nieuw bedrijf
December 2025
Bosstraat 120, 6071PZ Swalmen

Binnenkijken bij
Zaterdag 20-12-2025
Graaf Gerardstraat 1A, 6071XG Swalmen

112 melding
Maandag 15-12-2025 om 17:59
Sportparklaan, 6071RA Swalmen

112 melding
Maandag 15-12-2025 om 17:58
Sportparklaan, 6071RA Swalmen

112 melding
Dinsdag 9-12-2025 om 20:43
Peelveldlaan, Swalmen

Direct een e-mail ontvangen bij nieuwe meldingen in deze regio?

Meld je dan GRATIS aan voor de Oozo Alert service voor Martin Giessen-Bosstraat

Instellen

Meer nieuws in Martin Giessen-Bosstraat

Weten hoe eenvoudig het is om af te vallen? Zonder pillen en smeersels en zonder je in het zweet te werken!
Kijk op eenvoudig-afvallen.nl

© 2012 - 2025 OOZO.nl - info@oozo.nl - Gegevens verwijderen? | Disclaimer | Privacy statement