Woning Robijnstraat 25 Swalmen

Robijnstraat 25, 6071VJ Swalmen

Ontvang updates voor Martin Giessen-Bosstraat

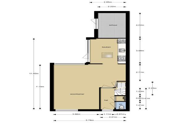
Het adres van deze woning uit 1965 is Robijnstraat 25 te Swalmen. Het pand heeft een oppervlakte van 92m² en een perceeloppervlakte van 148m² en heeft 5 kamers kamers waarvan 3 slaapkamers. De geschatte waarde van deze woning is € 145.000.

Bekijk alle woningen in Martin Giessen-Bosstraat

Gegevens van Eengezinswoning, tussenwoning

Bouwjaar
1965
Geschatte waarde
€ 145.000
Oppervlakte
92 m2
Inhoud
370 m3
Aantal kamers
5 kamers
Slaapkamers
3
Badkamers
1 badkamer en 1 apart toilet
Soort bouw
Bestaande bouw
Eigendomssituatie
Volle eigendom
Ligging
In woonwijk
Tuin
Achtertuin en voortuin
Achtertuin
46 m² (11,5m diep en 4m breed)

Voorzieningen in de buurt

Boodschappen0,7 km
Grote supermarkt1,2 km
Cafetaria0,4 km
Restaurant0,7 km
Huisarts1,3 km
Ziekenhuis6,3 km
Kinderdagverblijf0,5 km
BSO0,5 km
Alle voorzieningen in Martin Giessen-Bosstraat

Binnenkijken bij Robijnstraat 25 te Swalmen

Meer meldingen in deze omgeving

112 melding
Zondag 28-12-2025 om 11:21
Sint Sebastianusstraat, 6071VM Swalmen

Nieuw bedrijf
December 2025
Voorveld 2D, 6071RE Swalmen

Binnenkijken bij
Woensdag 24-12-2025
Bosstraat 73B, 6071XT Swalmen

Nieuw bedrijf
December 2025
Bosstraat 120, 6071PZ Swalmen

Binnenkijken bij
Zaterdag 20-12-2025
Graaf Gerardstraat 1A, 6071XG Swalmen

112 melding
Maandag 15-12-2025 om 17:59
Sportparklaan, 6071RA Swalmen

112 melding
Maandag 15-12-2025 om 17:58
Sportparklaan, 6071RA Swalmen

112 melding
Dinsdag 9-12-2025 om 20:43
Peelveldlaan, Swalmen

Direct een e-mail ontvangen bij nieuwe meldingen in deze regio?

Meld je dan GRATIS aan voor de Oozo Alert service voor Martin Giessen-Bosstraat

Instellen

Meer nieuws in Martin Giessen-Bosstraat

Weten hoe eenvoudig het is om af te vallen? Zonder pillen en smeersels en zonder je in het zweet te werken!
Kijk op eenvoudig-afvallen.nl

© 2012 - 2026 OOZO.nl - info@oozo.nl - Gegevens verwijderen? | Disclaimer | Privacy statement