Woning Pastoor van Cruchtenstraat 1 Swalmen

Pastoor van Cruchtenstraat 1, 6071VD Swalmen

Ontvang updates voor Martin Giessen-Bosstraat

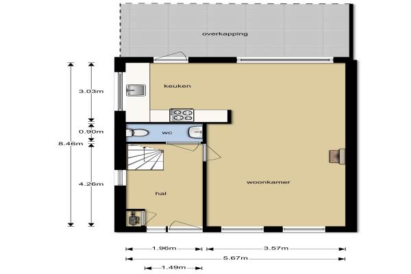
Het adres van deze woning uit 1970 is Pastoor van Cruchtenstraat 1 te Swalmen. Het pand heeft een oppervlakte van 112m² en een perceeloppervlakte van 215m² en heeft 7 kamers kamers waarvan 4 slaapkamers. De geschatte waarde van deze woning is € 169.500.

Bekijk alle woningen in Martin Giessen-Bosstraat

Gegevens van Eengezinswoning, 2-onder-1-kapwoning

Bouwjaar
1970
Geschatte waarde
€ 169.500
Oppervlakte
112 m2
Inhoud
397 m3
Aantal kamers
7 kamers
Slaapkamers
4
Soort bouw
Bestaande bouw
Ligging
In woonwijk en landelijk gelegen

Voorzieningen in de buurt

Boodschappen0,7 km
Grote supermarkt1,2 km
Cafetaria0,4 km
Restaurant0,7 km
Huisarts1,3 km
Ziekenhuis6,3 km
Kinderdagverblijf0,5 km
BSO0,5 km
Alle voorzieningen in Martin Giessen-Bosstraat

Binnenkijken bij Pastoor van Cruchtenstraat 1 te Swalmen

Meer meldingen in deze omgeving

Nieuw bedrijf
Januari 2026
Pater Geraedtsstraat 32B, 6071VW Swalmen

Nieuw bedrijf
Januari 2026
De Oever 31, 6071SK Swalmen

Nieuw bedrijf
Januari 2026
Pastoor Zandersstraat 19, 6071VB Swalmen

112 melding
Zondag 28-12-2025 om 11:21
Sint Sebastianusstraat, 6071VM Swalmen

Nieuw bedrijf
December 2025
Voorveld 2D, 6071RE Swalmen

Binnenkijken bij
Woensdag 24-12-2025
Bosstraat 73B, 6071XT Swalmen

Nieuw bedrijf
December 2025
Bosstraat 120, 6071PZ Swalmen

Binnenkijken bij
Zaterdag 20-12-2025
Graaf Gerardstraat 1A, 6071XG Swalmen

Direct een e-mail ontvangen bij nieuwe meldingen in deze regio?

Meld je dan GRATIS aan voor de Oozo Alert service voor Martin Giessen-Bosstraat

Instellen

Meer nieuws in Martin Giessen-Bosstraat

Weten hoe eenvoudig het is om af te vallen? Zonder pillen en smeersels en zonder je in het zweet te werken!
Kijk op eenvoudig-afvallen.nl

© 2012 - 2026 OOZO.nl - info@oozo.nl - Gegevens verwijderen? | Disclaimer | Privacy statement