Woning Chaletberg 71 Roosendaal

Chaletberg 71, 4707DP Roosendaal

Ontvang updates voor De Krogten

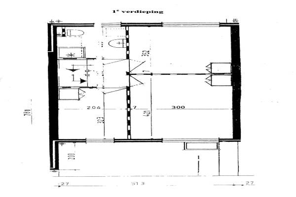
Het adres van deze woning uit 1985 is Chaletberg 71 te Roosendaal. Het pand heeft een oppervlakte van 90m² en een perceeloppervlakte van 143m² en heeft 5 kamers kamers waarvan 4 slaapkamers. De geschatte waarde van deze woning is € 177.500.

Bekijk alle woningen in De Krogten

Gegevens van Eengezinswoning, eindwoning

Bouwjaar
1985
Geschatte waarde
€ 177.500
Oppervlakte
90 m2
Inhoud
315 m3
Aantal kamers
5 kamers
Slaapkamers
4
Soort bouw
Bestaande bouw
Eigendomssituatie
Volle eigendom
Tuin
Achtertuin
Achtertuin
73 m² (13,6m diep en 5,4m breed)

Voorzieningen in de buurt

Boodschappen1,1 km
Grote supermarkt1,2 km
Cafetaria1,1 km
Restaurant1,1 km
Huisarts0,9 km
Ziekenhuis2,4 km
Kinderdagverblijf1,3 km
BSO1,4 km
Alle voorzieningen in De Krogten

Binnenkijken bij Chaletberg 71 te Roosendaal

Meer meldingen in deze omgeving

Binnenkijken bij
Vrijdag 14-11-2025
Champetterberg 117, 4707DE Roosendaal

Nieuw bedrijf
November 2025
Cyclaamberg 21, 4707DX Roosendaal

112 melding
Vrijdag 24-10-2025 om 06:17
Klein Brabant, 4707DV Roosendaal

112 melding
Dinsdag 14-10-2025 om 20:04
Chaletberg, Roosendaal

Binnenkijken bij
Zaterdag 11-10-2025
Cyclaamberg 80, 4707DZ Roosendaal

Binnenkijken bij
Donderdag 9-10-2025
Cyclaamberg 2, 4707DZ Roosendaal

Nieuw bedrijf
September 2025
Cederberg 16, 4707DK Roosendaal

Nieuw bedrijf
Juli 2025
Chaletberg 61, 4707DP Roosendaal

Direct een e-mail ontvangen bij nieuwe meldingen in deze regio?

Meld je dan GRATIS aan voor de Oozo Alert service voor De Krogten

Instellen

Meer nieuws in De Krogten

Weten hoe eenvoudig het is om af te vallen? Zonder pillen en smeersels en zonder je in het zweet te werken!
Kijk op eenvoudig-afvallen.nl

© 2012 - 2025 OOZO.nl - info@oozo.nl - Gegevens verwijderen? | Disclaimer | Privacy statement