Woning Verweylaan 35 Roosendaal

Verweylaan 35, 4707LR Roosendaal

Ontvang updates voor Kroeven-Zuidwest

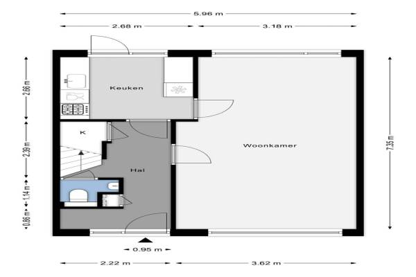
Het adres van deze woning uit 1970 is Verweylaan 35 te Roosendaal. Het pand heeft een oppervlakte van 105m² en een perceeloppervlakte van 163m² en heeft 5 kamers kamers waarvan 4 slaapkamers. De geschatte waarde van deze woning is € 300.000.

Bekijk alle woningen in Kroeven-Zuidwest

Gegevens van Eengezinswoning, tussenwoning

Bouwjaar
1970
Geschatte waarde
€ 300.000
Oppervlakte
105 m2
Inhoud
375 m3
Aantal kamers
5 kamers
Slaapkamers
4
Badkamers
1 badkamer en 1 apart toilet
Soort bouw
Bestaande bouw
Eigendomssituatie
Volle eigendom
Ligging
In woonwijk en vrij uitzicht
Tuin
Achtertuin en voortuin
Achtertuin
66 m² (12,00 meter diep en 5,50 meter breed)

Voorzieningen in de buurt

Boodschappen0,8 km
Grote supermarkt0,8 km
Cafetaria0,9 km
Restaurant1,7 km
Huisarts0,8 km
Ziekenhuis3,6 km
Kinderdagverblijf0,2 km
BSO0,6 km
Alle voorzieningen in Kroeven-Zuidwest

Binnenkijken bij Verweylaan 35 te Roosendaal

Meer meldingen in deze omgeving

Nieuw bedrijf
Januari 2026
Haverschmidtlaan 56, 4707KV Roosendaal

Nieuw bedrijf
Januari 2026
Van Eedenlaan 5, 4707LA Roosendaal

Nieuw bedrijf
December 2025
Van Effenlaan 3c, 4707JG Roosendaal

Nieuw bedrijf
December 2025
Van Eedenlaan 23, 4707LA Roosendaal

Nieuw bedrijf
December 2025
Van Schendellaan 12, 4707LE Roosendaal

112 melding
Zondag 28-12-2025 om 17:09
Pootlaan, Roosendaal

112 melding
Vrijdag 26-12-2025 om 05:26
Van Alphenlaan, 4707JJ Roosendaal

112 melding
Dinsdag 23-12-2025 om 14:06
De Genestetlaan, Roosendaal

Direct een e-mail ontvangen bij nieuwe meldingen in deze regio?

Meld je dan GRATIS aan voor de Oozo Alert service voor Kroeven-Zuidwest

Instellen

Meer nieuws in Kroeven-Zuidwest

Weten hoe eenvoudig het is om af te vallen? Zonder pillen en smeersels en zonder je in het zweet te werken!
Kijk op eenvoudig-afvallen.nl

© 2012 - 2026 OOZO.nl - info@oozo.nl - Gegevens verwijderen? | Disclaimer | Privacy statement