Woning Ambrozijnberg 91 Roosendaal

Ambrozijnberg 91, 4707ML Roosendaal

Ontvang updates voor Minnebeek-Watermolen

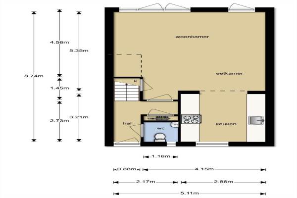
Het adres van deze woning uit 1983 is Ambrozijnberg 91 te Roosendaal. Het pand heeft een oppervlakte van 112m² en een perceeloppervlakte van 153m² en heeft 4 kamers kamers waarvan 3 slaapkamers. De geschatte waarde van deze woning is € 189.500.

Bekijk alle woningen in Minnebeek-Watermolen

Gegevens van Eengezinswoning, tussenwoning

Bouwjaar
1983
Geschatte waarde
€ 189.500
Oppervlakte
112 m2
Inhoud
360 m3
Aantal kamers
4 kamers
Slaapkamers
3
Soort bouw
Bestaande bouw
Eigendomssituatie
Volle eigendom
Ligging
In woonwijk
Tuin
Achtertuin en voortuin
Achtertuin
60 m² (12m diep en 5m breed)

Voorzieningen in de buurt

Boodschappen2,0 km
Grote supermarkt2,0 km
Cafetaria0,8 km
Restaurant2,4 km
Huisarts0,8 km
Ziekenhuis3,6 km
Kinderdagverblijf2,0 km
BSO2,0 km
Alle voorzieningen in Minnebeek-Watermolen

Binnenkijken bij Ambrozijnberg 91 te Roosendaal

Meer meldingen in deze omgeving

Binnenkijken bij
Vrijdag 28-11-2025
Bloesemberg 17, 4707RZ Roosendaal

Nieuw bedrijf
November 2025
Balsemienberg 13, 4707SW Roosendaal

Nieuw bedrijf
November 2025
Baakberg 13, 4707RX Roosendaal

112 melding
Dinsdag 25-11-2025 om 13:12
Ambrozijnberg, Roosendaal

112 melding
Vrijdag 21-11-2025 om 03:25
Bandeliersberg, Roosendaal

112 melding
Vrijdag 21-11-2025 om 02:39
Bandeliersberg, Roosendaal

Binnenkijken bij
Dinsdag 11-11-2025
Ambrozijnberg 29, 4707MK Roosendaal

Binnenkijken bij
Dinsdag 11-11-2025
Abdijberg 45, 4707MX Roosendaal

Direct een e-mail ontvangen bij nieuwe meldingen in deze regio?

Meld je dan GRATIS aan voor de Oozo Alert service voor Minnebeek-Watermolen

Instellen

Meer nieuws in Minnebeek-Watermolen

Weten hoe eenvoudig het is om af te vallen? Zonder pillen en smeersels en zonder je in het zweet te werken!
Kijk op eenvoudig-afvallen.nl

© 2012 - 2025 OOZO.nl - info@oozo.nl - Gegevens verwijderen? | Disclaimer | Privacy statement