Woning Abeliadonk 2 Roosendaal

Abeliadonk 2, 4707EZ Roosendaal

Ontvang updates voor Langdonk-Oost

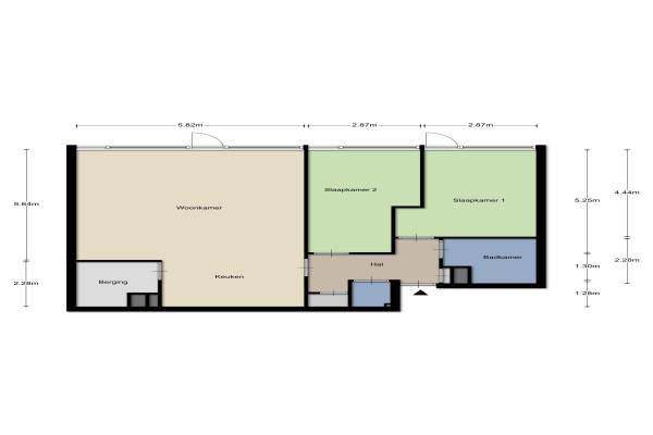
Het adres van deze woning uit 1970 is Abeliadonk 2 te Roosendaal. Het pand heeft een oppervlakte van 89m² en heeft 3 kamers kamers waarvan 2 slaapkamers. De geschatte waarde van deze woning is € 149.000.

Bekijk alle woningen in Langdonk-Oost

Gegevens van Portiekflat

Bouwjaar
1970
Geschatte waarde
€ 149.000
Oppervlakte
89 m2
Inhoud
216 m3
Aantal kamers
3 kamers
Slaapkamers
2
Badkamers
1 apart toilet
Soort bouw
Bestaande bouw
Ligging
In woonwijk

Voorzieningen in de buurt

Boodschappen0,5 km
Grote supermarkt0,6 km
Cafetaria0,5 km
Restaurant0,5 km
Huisarts1,3 km
Ziekenhuis4,7 km
Kinderdagverblijf0,4 km
BSO0,5 km
Alle voorzieningen in Langdonk-Oost

Binnenkijken bij Abeliadonk 2 te Roosendaal

Meer meldingen in deze omgeving

112 melding
Vrijdag 28-11-2025 om 19:08
Agathadonk, Roosendaal

Nieuw bedrijf
November 2025
Elisadonk 148, 4707EJ Roosendaal

Nieuw bedrijf
November 2025
Isabelladonk 47, 4707VS Roosendaal

112 melding
Dinsdag 18-11-2025 om 09:55
Lindenburg, 4707CR Roosendaal

112 melding
Woensdag 12-11-2025 om 14:22
Elisadonk, 4707EM Roosendaal

Binnenkijken bij
Dinsdag 11-11-2025
Lindenburg 24, 4707CR Roosendaal

Nieuw bedrijf
November 2025
Elisadonk 169, 4707EK Roosendaal

112 melding
Zondag 2-11-2025 om 10:15
Elisadonk, Roosendaal

Direct een e-mail ontvangen bij nieuwe meldingen in deze regio?

Meld je dan GRATIS aan voor de Oozo Alert service voor Langdonk-Oost

Instellen

Meer nieuws in Langdonk-Oost

Weten hoe eenvoudig het is om af te vallen? Zonder pillen en smeersels en zonder je in het zweet te werken!
Kijk op eenvoudig-afvallen.nl

© 2012 - 2025 OOZO.nl - info@oozo.nl - Gegevens verwijderen? | Disclaimer | Privacy statement