Woning Obrechtlaan 10 Roosendaal

Obrechtlaan 10, 4702HB Roosendaal

Ontvang updates voor Fatima-villapark

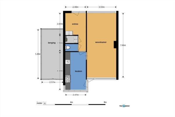
Het adres van deze woning uit 1964 is Obrechtlaan 10 te Roosendaal. Het pand heeft een oppervlakte van 96m² en een perceeloppervlakte van 221m² en heeft 5 kamers kamers waarvan 4 slaapkamers. De geschatte waarde van deze woning is € 214.500.

Bekijk alle woningen in Fatima-villapark

Gegevens van Eengezinswoning, hoekwoning

Bouwjaar
1964
Geschatte waarde
€ 214.500
Oppervlakte
96 m2
Inhoud
320 m3
Aantal kamers
5 kamers
Slaapkamers
4
Soort bouw
Bestaande bouw
Eigendomssituatie
Volle eigendom
Tuin
Achtertuin
Achtertuin
116 m² (10m diep en 11,6m breed)

Voorzieningen in de buurt

Boodschappen0,4 km
Grote supermarkt0,7 km
Cafetaria0,3 km
Restaurant0,7 km
Huisarts0,6 km
Ziekenhuis3,5 km
Kinderdagverblijf0,5 km
BSO0,5 km
Alle voorzieningen in Fatima-villapark

Binnenkijken bij Obrechtlaan 10 te Roosendaal

Meer meldingen in deze omgeving

Nieuw bedrijf
November 2025
Van Anrooylaan 9, 4702HA Roosendaal

112 melding
Vrijdag 14-11-2025 om 11:42
Monseigneur Hopmansstraat, Roosendaal

112 melding
Vrijdag 14-11-2025 om 05:35
Monseigneur Hopmansstraat, Roosendaal

Nieuw bedrijf
November 2025
Doctor Mollerlaan 49, 4702JW Roosendaal

112 melding
Donderdag 13-11-2025 om 23:33
Monseigneur Hopmansstraat, Roosendaal

112 melding
Donderdag 13-11-2025 om 21:20
Monseigneur Hopmansstraat, Roosendaal

112 melding
Woensdag 12-11-2025 om 16:03
Doctor Schaepmanlaan, Roosendaal

112 melding
Woensdag 12-11-2025 om 12:39
Doctor Schaepmanlaan, Roosendaal

Direct een e-mail ontvangen bij nieuwe meldingen in deze regio?

Meld je dan GRATIS aan voor de Oozo Alert service voor Fatima-villapark

Instellen

Meer nieuws in Fatima-villapark

Weten hoe eenvoudig het is om af te vallen? Zonder pillen en smeersels en zonder je in het zweet te werken!
Kijk op eenvoudig-afvallen.nl

© 2012 - 2025 OOZO.nl - info@oozo.nl - Gegevens verwijderen? | Disclaimer | Privacy statement