Woning Fatimalaan 12 Roosendaal

Fatimalaan 12, 4702GR Roosendaal

Ontvang updates voor Fatima-villapark

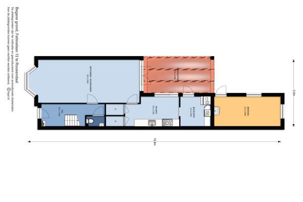
Het adres van deze woning uit 1939 is Fatimalaan 12 te Roosendaal. Het pand heeft een oppervlakte van 135m² en een perceeloppervlakte van 242m² en heeft 5 kamers kamers waarvan 4 slaapkamers. De geschatte waarde van deze woning is € 298.000.

Bekijk alle woningen in Fatima-villapark

Gegevens van Eengezinswoning, 2-onder-1-kapwoning

Bouwjaar
1939
Geschatte waarde
€ 298.000
Oppervlakte
135 m2
Inhoud
527 m3
Aantal kamers
5 kamers
Slaapkamers
4
Badkamers
2 aparte toiletten
Soort bouw
Bestaande bouw
Eigendomssituatie
Volle eigendom
Ligging
In centrum, in woonwijk en beschutte ligging
Tuin
Achtertuin
Achtertuin
136 m² (21,84m diep en 6,24m breed)

Voorzieningen in de buurt

Boodschappen0,4 km
Grote supermarkt0,7 km
Cafetaria0,3 km
Restaurant0,7 km
Huisarts0,6 km
Ziekenhuis3,5 km
Kinderdagverblijf0,5 km
BSO0,5 km
Alle voorzieningen in Fatima-villapark

Binnenkijken bij Fatimalaan 12 te Roosendaal

Meer meldingen in deze omgeving

Nieuw bedrijf
November 2025
Fatimalaan 22, 4702GR Roosendaal

Nieuw bedrijf
November 2025
Van Anrooylaan 9, 4702HA Roosendaal

112 melding
Vrijdag 14-11-2025 om 11:42
Monseigneur Hopmansstraat, Roosendaal

112 melding
Vrijdag 14-11-2025 om 05:35
Monseigneur Hopmansstraat, Roosendaal

Nieuw bedrijf
November 2025
Doctor Mollerlaan 49, 4702JW Roosendaal

112 melding
Donderdag 13-11-2025 om 23:33
Monseigneur Hopmansstraat, Roosendaal

112 melding
Donderdag 13-11-2025 om 21:20
Monseigneur Hopmansstraat, Roosendaal

112 melding
Woensdag 12-11-2025 om 16:03
Doctor Schaepmanlaan, Roosendaal

Direct een e-mail ontvangen bij nieuwe meldingen in deze regio?

Meld je dan GRATIS aan voor de Oozo Alert service voor Fatima-villapark

Instellen

Meer nieuws in Fatima-villapark

Weten hoe eenvoudig het is om af te vallen? Zonder pillen en smeersels en zonder je in het zweet te werken!
Kijk op eenvoudig-afvallen.nl

© 2012 - 2025 OOZO.nl - info@oozo.nl - Gegevens verwijderen? | Disclaimer | Privacy statement