Woning Van Gilselaan 21 Roosendaal

Van Gilselaan 21, 4702GH Roosendaal

Ontvang updates voor Sint Josephbuurt

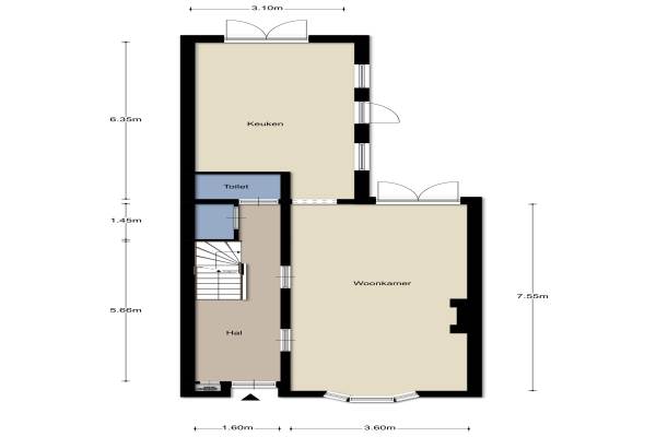
Het adres van deze woning uit 1936 is Van Gilselaan 21 te Roosendaal. Het pand heeft een oppervlakte van 135m² en een perceeloppervlakte van 283m² en heeft 5 kamers kamers waarvan 3 slaapkamers. De geschatte waarde van deze woning is € 329.000.

Bekijk alle woningen in Sint Josephbuurt

Gegevens van Eengezinswoning, vrijstaande woning

Bouwjaar
1936
Geschatte waarde
€ 329.000
Oppervlakte
135 m2
Inhoud
450 m3
Aantal kamers
5 kamers
Slaapkamers
3
Badkamers
1 badkamer en 1 apart toilet
Soort bouw
Bestaande bouw
Eigendomssituatie
Volle eigendom
Ligging
In woonwijk
Tuin
Achtertuin en voortuin
Achtertuin
189 m² (27m diep en 7m breed)

Voorzieningen in de buurt

Boodschappen0,2 km
Grote supermarkt0,4 km
Cafetaria0,2 km
Restaurant0,2 km
Huisarts0,4 km
Ziekenhuis3,1 km
Kinderdagverblijf0,3 km
BSO0,3 km
Alle voorzieningen in Sint Josephbuurt

Binnenkijken bij Van Gilselaan 21 te Roosendaal

Meer meldingen in deze omgeving

Binnenkijken bij
Woensdag 29-10-2025
Voorstraat 49, 4702EM Roosendaal

Nieuw bedrijf
Oktober 2025
Kees Dekkershof 1, 4702CS Roosendaal

112 melding
Vrijdag 10-10-2025 om 09:05
Valkenburgstraat, Roosendaal

Binnenkijken bij
Donderdag 9-10-2025
Ireneplein 2A, 4702EX Roosendaal

Binnenkijken bij
Zaterdag 27-9-2025
Middenstraat 1, 4702GA Roosendaal

Binnenkijken bij
Donderdag 25-9-2025
Voorstraat 7, 4702EL Roosendaal

Binnenkijken bij
Vrijdag 19-9-2025
Middenstraat 57, 4702GB Roosendaal

Binnenkijken bij
Vrijdag 19-9-2025
Voorstraat 72, 4702ES Roosendaal

Direct een e-mail ontvangen bij nieuwe meldingen in deze regio?

Meld je dan GRATIS aan voor de Oozo Alert service voor Sint Josephbuurt

Instellen

Meer nieuws in Sint Josephbuurt

Weten hoe eenvoudig het is om af te vallen? Zonder pillen en smeersels en zonder je in het zweet te werken!
Kijk op eenvoudig-afvallen.nl

© 2012 - 2025 OOZO.nl - info@oozo.nl - Gegevens verwijderen? | Disclaimer | Privacy statement