Woning Eksterstraat 19 Rotterdam

Eksterstraat 19, 3083XA Rotterdam

Ontvang updates voor Carnisse

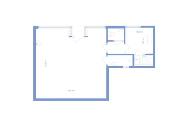
Het adres van deze woning uit 1950 is Eksterstraat 19 te Rotterdam. Het pand heeft een oppervlakte van 45m² en heeft 1 kamers kamers. De geschatte waarde van deze woning is € 198.500.

Bekijk alle woningen in Carnisse

Gegevens van Benedenwoning (appartement)

Bouwjaar
1950
Geschatte waarde
€ 198.500
Oppervlakte
45 m2
Inhoud
241 m3
Aantal kamers
1 kamers
Badkamers
1 badkamer en 1 apart toilet
Soort bouw
Bestaande bouw
Eigendomssituatie
Volle eigendom
Ligging
Aan rustige weg, in centrum en in woonwijk

Voorzieningen in de buurt

Boodschappen0,2 km
Grote supermarkt0,3 km
Cafetaria0,2 km
Restaurant0,3 km
Huisarts0,3 km
Ziekenhuis1,4 km
Kinderdagverblijf0,2 km
BSO0,3 km
Alle voorzieningen in Carnisse

Binnenkijken bij Eksterstraat 19 te Rotterdam

Meer meldingen in deze omgeving

112 melding
Donderdag 13-11-2025 om 12:42
Eksterstraat, 3083XA Rotterdam

112 melding
Donderdag 13-11-2025 om 12:15
Korhaanstraat, 3083XH Rotterdam

112 melding
Donderdag 13-11-2025 om 12:02
Korhaanstraat, 3083XH Rotterdam

112 melding
Woensdag 12-11-2025 om 19:08
Walchersestraat, 3083NG Rotterdam

112 melding
Woensdag 12-11-2025 om 17:05
Terschellingsestraat, 3083PN Rotterdam

112 melding
Woensdag 12-11-2025 om 17:00
Carnisselaan, 3083HE Rotterdam

112 melding
Woensdag 12-11-2025 om 08:58
Eksterstraat, 3083XA Rotterdam

112 melding
Woensdag 12-11-2025 om 06:21
Wieringerstraat, 3083CL Rotterdam

Direct een e-mail ontvangen bij nieuwe meldingen in deze regio?

Meld je dan GRATIS aan voor de Oozo Alert service voor Carnisse

Instellen

Meer nieuws in Carnisse

Weten hoe eenvoudig het is om af te vallen? Zonder pillen en smeersels en zonder je in het zweet te werken!
Kijk op eenvoudig-afvallen.nl

© 2012 - 2025 OOZO.nl - info@oozo.nl - Gegevens verwijderen? | Disclaimer | Privacy statement