Woning Madeliefstraat 33 Rotterdam

Madeliefstraat 33, 3083TC Rotterdam

Ontvang updates voor Carnisse

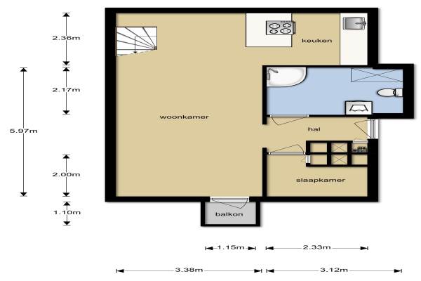
Het adres van deze woning uit 1947 is Madeliefstraat 33 te Rotterdam. Het pand heeft een oppervlakte van 75m² en heeft 3 kamers kamers waarvan 2 slaapkamers. De geschatte waarde van deze woning is € 119.500.

Bekijk alle woningen in Carnisse

Gegevens van Maisonnette (appartement)

Bouwjaar
1947
Geschatte waarde
€ 119.500
Oppervlakte
75 m2
Inhoud
200 m3
Aantal kamers
3 kamers
Slaapkamers
2
Badkamers
1 badkamer
Soort bouw
Bestaande bouw
Eigendomssituatie
Volle eigendom
Ligging
Aan rustige weg en in woonwijk

Voorzieningen in de buurt

Boodschappen0,2 km
Grote supermarkt0,3 km
Cafetaria0,2 km
Restaurant0,3 km
Huisarts0,3 km
Ziekenhuis1,4 km
Kinderdagverblijf0,2 km
BSO0,3 km
Alle voorzieningen in Carnisse

Binnenkijken bij Madeliefstraat 33 te Rotterdam

Meer meldingen in deze omgeving

Binnenkijken bij
Zaterdag 20-12-2025
Tapuitstraat 51C, 3083WG Rotterdam

Binnenkijken bij
Zaterdag 20-12-2025
Goereesestraat 39B, 3083DC Rotterdam

Binnenkijken bij
Zaterdag 20-12-2025
Tapuitstraat 37B, 3083WE Rotterdam

112 melding
Vrijdag 19-12-2025 om 15:09
Carnissesingel, 3083JA Rotterdam

112 melding
Vrijdag 19-12-2025 om 12:52
Goereesestraat, 3083DD Rotterdam

112 melding
Donderdag 18-12-2025 om 19:54
Carnissesingel, 3083JA Rotterdam

112 melding
Donderdag 18-12-2025 om 11:57
Katendrechtse Lagedijk, 3083GE Rotterdam

112 melding
Woensdag 17-12-2025 om 20:33
Bevelandsestraat, 3083NA Rotterdam

Direct een e-mail ontvangen bij nieuwe meldingen in deze regio?

Meld je dan GRATIS aan voor de Oozo Alert service voor Carnisse

Instellen

Meer nieuws in Carnisse

Weten hoe eenvoudig het is om af te vallen? Zonder pillen en smeersels en zonder je in het zweet te werken!
Kijk op eenvoudig-afvallen.nl

© 2012 - 2025 OOZO.nl - info@oozo.nl - Gegevens verwijderen? | Disclaimer | Privacy statement