Woning Lepelaarsingel 137 Rotterdam

Lepelaarsingel 137, 3083KG Rotterdam

Ontvang updates voor Carnisse

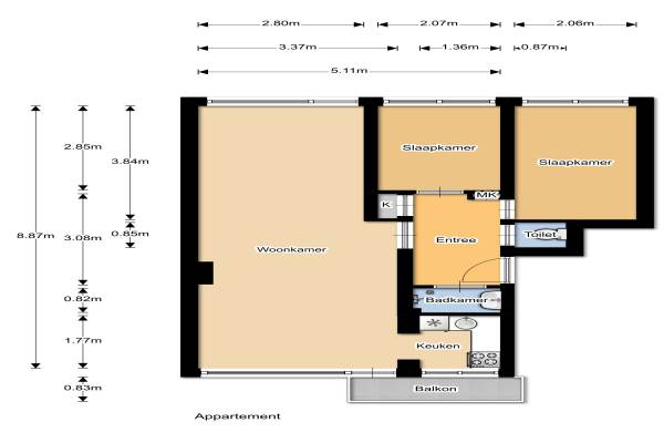
Het adres van deze woning uit 1947 is Lepelaarsingel 137 te Rotterdam. Het pand heeft een oppervlakte van 55m² en heeft 3 kamers kamers waarvan 2 slaapkamers. De geschatte waarde van deze woning is € 95.000.

Bekijk alle woningen in Carnisse

Gegevens van Portiekflat (appartement)

Bouwjaar
1947
Geschatte waarde
€ 95.000
Oppervlakte
55 m2
Inhoud
150 m3
Aantal kamers
3 kamers
Slaapkamers
2
Badkamers
1 badkamer en 1 apart toilet
Soort bouw
Bestaande bouw
Eigendomssituatie
Volle eigendom
Ligging
Aan water, aan rustige weg, in woonwijk, vrij uitzicht en beschutte ligging

Voorzieningen in de buurt

Boodschappen0,2 km
Grote supermarkt0,3 km
Cafetaria0,2 km
Restaurant0,3 km
Huisarts0,3 km
Ziekenhuis1,4 km
Kinderdagverblijf0,2 km
BSO0,3 km
Alle voorzieningen in Carnisse

Binnenkijken bij Lepelaarsingel 137 te Rotterdam

Meer meldingen in deze omgeving

Nieuw bedrijf
November 2025
Texelsestraat 26A, 3083PW Rotterdam

Nieuw bedrijf
November 2025
Carnisselaan 69B, 3083HC Rotterdam

Nieuw bedrijf
November 2025
Katendrechtse Lagedijk 29801, 3083GL Rotterdam

112 melding
Donderdag 13-11-2025 om 15:51
Bevelandsestraat, 3083NA Rotterdam

Faillissement
Donderdag 13-11-2025
Ebenhaëzerstraat 29B, 3083RD Rotterdam

112 melding
Donderdag 13-11-2025 om 12:42
Eksterstraat, 3083XA Rotterdam

112 melding
Donderdag 13-11-2025 om 12:15
Korhaanstraat, 3083XH Rotterdam

112 melding
Donderdag 13-11-2025 om 12:02
Korhaanstraat, 3083XH Rotterdam

Direct een e-mail ontvangen bij nieuwe meldingen in deze regio?

Meld je dan GRATIS aan voor de Oozo Alert service voor Carnisse

Instellen

Meer nieuws in Carnisse

Weten hoe eenvoudig het is om af te vallen? Zonder pillen en smeersels en zonder je in het zweet te werken!
Kijk op eenvoudig-afvallen.nl

© 2012 - 2025 OOZO.nl - info@oozo.nl - Gegevens verwijderen? | Disclaimer | Privacy statement