Woning Wemeldingestraat 4 Rotterdam

Wemeldingestraat 4, 3086JT Rotterdam

Ontvang updates voor Pendrecht

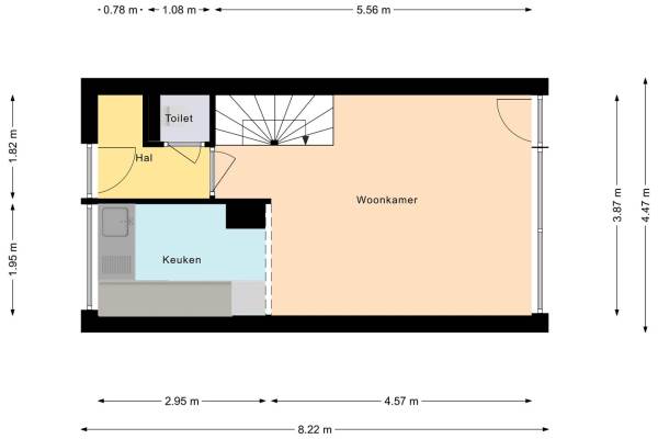
Het adres van deze woning uit 1960 is Wemeldingestraat 4 te Rotterdam. Het pand heeft een oppervlakte van 60m² en een perceeloppervlakte van 99m² en heeft 4 kamers kamers waarvan 2 slaapkamers. De geschatte waarde van deze woning is € 240.000.

Bekijk alle woningen in Pendrecht

Gegevens van Eengezinswoning, tussenwoning

Bouwjaar
1960
Geschatte waarde
€ 240.000
Oppervlakte
60 m2
Inhoud
175 m3
Aantal kamers
4 kamers
Slaapkamers
2
Badkamers
1 badkamer en 1 apart toilet
Soort bouw
Bestaande bouw
Eigendomssituatie
Volle eigendom
Ligging
Aan rustige weg en in woonwijk
Tuin
Achtertuin en voortuin
Achtertuin
44 m² (11 meter diep en 4 meter breed)

Voorzieningen in de buurt

Boodschappen0,4 km
Grote supermarkt0,4 km
Cafetaria0,3 km
Restaurant0,5 km
Huisarts0,5 km
Ziekenhuis2,9 km
Kinderdagverblijf0,3 km
BSO0,4 km
Alle voorzieningen in Pendrecht

Binnenkijken bij Wemeldingestraat 4 te Rotterdam

Meer meldingen in deze omgeving

112 melding
Woensdag 21-1-2026 om 12:19
Oldegaarde, 3086AE Rotterdam

Binnenkijken bij
Woensdag 21-1-2026
Vlissingenplein 142, 3086GZ Rotterdam

Binnenkijken bij
Woensdag 21-1-2026
Krabbendijkestraat 382, 3086LZ Rotterdam

Binnenkijken bij
Woensdag 21-1-2026
Kerkwervesingel 261, 3086HN Rotterdam

Binnenkijken bij
Woensdag 21-1-2026
Kerkwervesingel 153, 3086HM Rotterdam

Binnenkijken bij
Woensdag 21-1-2026
Vlissingenplein 131, 3086GZ Rotterdam

Nieuw bedrijf
Januari 2026
Sint-Maartensdijkstraat 7, 3086TH Rotterdam

Nieuw bedrijf
Januari 2026
Slinge 666, 3086EX Rotterdam

Direct een e-mail ontvangen bij nieuwe meldingen in deze regio?

Meld je dan GRATIS aan voor de Oozo Alert service voor Pendrecht

Instellen

Meer nieuws in Pendrecht

Weten hoe eenvoudig het is om af te vallen? Zonder pillen en smeersels en zonder je in het zweet te werken!
Kijk op eenvoudig-afvallen.nl

© 2012 - 2026 OOZO.nl - info@oozo.nl - Gegevens verwijderen? | Disclaimer | Privacy statement