Woning J.B. Bakemakade 20 Rotterdam

J.B. Bakemakade 20, 3071ME Rotterdam

Ontvang updates voor Kop van Zuid - Entrepot

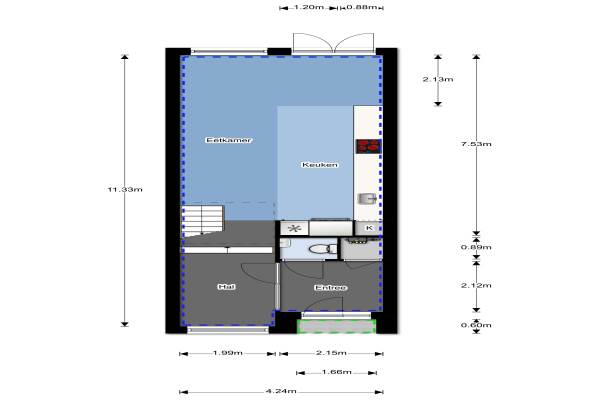
Het adres van deze woning uit 1998 is J.B. Bakemakade 20 te Rotterdam. Het pand heeft een oppervlakte van 151m² en een perceeloppervlakte van 86m² en heeft 5 kamers kamers waarvan 3 slaapkamers. De geschatte waarde van deze woning is € 475.000.

Bekijk alle woningen in Kop van Zuid - Entrepot

Gegevens van Eengezinswoning, tussenwoning

Bouwjaar
1998
Geschatte waarde
€ 475.000
Oppervlakte
151 m2
Inhoud
480 m3
Aantal kamers
5 kamers
Slaapkamers
3
Badkamers
1 badkamer en 2 aparte toiletten
Soort bouw
Bestaande bouw
Eigendomssituatie
Gemeentelijke erfpacht (einddatum erfpacht: 31-01-2099)
Ligging
Aan water, in woonwijk en vrij uitzicht
Tuin
Achtertuin
Achtertuin
23 m² (5,15m diep en 4,45m breed)

Voorzieningen in de buurt

Boodschappen0,3 km
Grote supermarkt0,3 km
Cafetaria0,2 km
Restaurant0,2 km
Huisarts0,3 km
Ziekenhuis2,3 km
Kinderdagverblijf0,2 km
BSO0,3 km
Alle voorzieningen in Kop van Zuid - Entrepot

Binnenkijken bij J.B. Bakemakade 20 te Rotterdam

Meer meldingen in deze omgeving

112 melding
Woensdag 21-1-2026 om 03:04
Spoorweghaven, 3071ZE Rotterdam

Binnenkijken bij
Woensdag 21-1-2026
Stieltjesstraat 16A02, 3071JW Rotterdam

Binnenkijken bij
Woensdag 21-1-2026
Handelsplein 83, 3071PR Rotterdam

Binnenkijken bij
Woensdag 21-1-2026
Handelsplein 35, 3071PR Rotterdam

Binnenkijken bij
Woensdag 21-1-2026
Nassaukade 24Q, 3071JL Rotterdam

Nieuw bedrijf
Januari 2026
J.H. van den Broekstraat 39, 3071MB Rotterdam

112 melding
Dinsdag 20-1-2026 om 02:28
Vuurplaat, 3071AR Rotterdam

112 melding
Maandag 19-1-2026 om 16:39
Vuurplaat, 3071AR Rotterdam

Direct een e-mail ontvangen bij nieuwe meldingen in deze regio?

Meld je dan GRATIS aan voor de Oozo Alert service voor Kop van Zuid - Entrepot

Instellen

Meer nieuws in Kop van Zuid - Entrepot

Weten hoe eenvoudig het is om af te vallen? Zonder pillen en smeersels en zonder je in het zweet te werken!
Kijk op eenvoudig-afvallen.nl

© 2012 - 2026 OOZO.nl - info@oozo.nl - Gegevens verwijderen? | Disclaimer | Privacy statement