Woning Maaskade 27d Rotterdam

Maaskade 27d, 3071NB Rotterdam

Ontvang updates voor Noordereiland

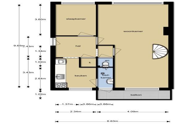
Het adres van deze woning uit 1953 is Maaskade 27d te Rotterdam. Het pand heeft een oppervlakte van 83m² en heeft 3 kamers kamers waarvan 2 slaapkamers. De geschatte waarde van deze woning is € 200.000.

Bekijk alle woningen in Noordereiland

Gegevens van Portiekflat (appartement)

Bouwjaar
1953
Geschatte waarde
€ 200.000
Oppervlakte
83 m2
Inhoud
296 m3
Aantal kamers
3 kamers
Slaapkamers
2
Badkamers
1 badkamer
Soort bouw
Bestaande bouw
Eigendomssituatie
Volle eigendom

Voorzieningen in de buurt

Boodschappen0,4 km
Grote supermarkt0,3 km
Cafetaria0,3 km
Restaurant0,2 km
Huisarts0,9 km
Ziekenhuis1,9 km
Kinderdagverblijf0,5 km
BSO0,9 km
Alle voorzieningen in Noordereiland

Binnenkijken bij Maaskade 27d te Rotterdam

Meer meldingen in deze omgeving

112 melding
Zaterdag 29-11-2025 om 10:58
Van der Takstraat, 3071LM Rotterdam

Binnenkijken bij
Zaterdag 29-11-2025
Maaskade 77A02, 3071ND Rotterdam

Nieuw bedrijf
November 2025
Maaskade 9203, 3071NE Rotterdam

Nieuw bedrijf
November 2025
Maaskade 10904, 3071NH Rotterdam

Nieuw bedrijf
November 2025
Anjerstraat 13, 3071VA Rotterdam

Nieuw bedrijf
November 2025
Maaskade 171A, 3071NS Rotterdam

112 melding
Donderdag 27-11-2025 om 09:52
Koopvaardijhof, 3071PK Rotterdam

Binnenkijken bij
Woensdag 26-11-2025
Prins Hendrikkade 166C, 3071KR Rotterdam

Direct een e-mail ontvangen bij nieuwe meldingen in deze regio?

Meld je dan GRATIS aan voor de Oozo Alert service voor Noordereiland

Instellen

Meer nieuws in Noordereiland

Weten hoe eenvoudig het is om af te vallen? Zonder pillen en smeersels en zonder je in het zweet te werken!
Kijk op eenvoudig-afvallen.nl

© 2012 - 2025 OOZO.nl - info@oozo.nl - Gegevens verwijderen? | Disclaimer | Privacy statement