Woning Theseusstraat 75 Rotterdam

Theseusstraat 75, 3054RZ Rotterdam

Ontvang updates voor Hillegersberg Noord

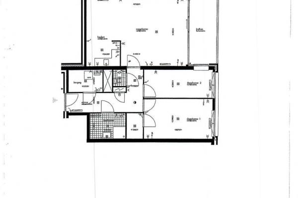
Het adres van deze woning uit 2007 is Theseusstraat 75 te Rotterdam. Het pand heeft een oppervlakte van 90m² en heeft 3 kamers kamers waarvan 2 slaapkamers. De geschatte waarde van deze woning is € 350.000.

Bekijk alle woningen in Hillegersberg Noord

Gegevens van Portiekflat (appartement)

Bouwjaar
2007
Geschatte waarde
€ 350.000
Oppervlakte
90 m2
Inhoud
275 m3
Aantal kamers
3 kamers
Slaapkamers
2
Badkamers
1 badkamer en 1 apart toilet
Soort bouw
Bestaande bouw
Eigendomssituatie
Volle eigendom
Ligging
In woonwijk en vrij uitzicht

Voorzieningen in de buurt

Boodschappen0,6 km
Grote supermarkt0,7 km
Cafetaria0,5 km
Restaurant0,5 km
Huisarts0,7 km
Ziekenhuis3,8 km
Kinderdagverblijf0,4 km
BSO0,6 km
Alle voorzieningen in Hillegersberg Noord

Binnenkijken bij Theseusstraat 75 te Rotterdam

Meer meldingen in deze omgeving

112 melding
Vrijdag 27-3-2026 om 10:43
Minervaplein, 3054SK Rotterdam

Nieuw bedrijf
Maart 2026
Adriaen van der Doeslaan 30B, 3054EE Rotterdam

Nieuw bedrijf
Maart 2026
Streksingel 261, 3054HH Rotterdam

112 melding
Donderdag 26-3-2026 om 15:17
Achillesstraat, 3054RL Rotterdam

Binnenkijken bij
Donderdag 26-3-2026
Jupiterstraat 220, 3054WH Rotterdam

112 melding
Woensdag 25-3-2026 om 19:14
Argonautenweg, 3054RP Rotterdam

112 melding
Woensdag 25-3-2026 om 19:06
Argonautenweg, 3054RP Rotterdam

112 melding
Woensdag 25-3-2026 om 18:48
Argonautenweg, 3054RP Rotterdam

Direct een e-mail ontvangen bij nieuwe meldingen in deze regio?

Meld je dan GRATIS aan voor de Oozo Alert service voor Hillegersberg Noord

Instellen

Meer nieuws in Hillegersberg Noord

Weten hoe eenvoudig het is om af te vallen? Zonder pillen en smeersels en zonder je in het zweet te werken!
Kijk op eenvoudig-afvallen.nl

© 2012 - 2026 OOZO.nl - info@oozo.nl - Gegevens verwijderen? | Disclaimer | Privacy statement