Woning Willem van Hillegaersbergstraat 35B01 Rotterdam

Willem van Hillegaersbergstraat 35B01, 3051RA Rotterdam

Ontvang updates voor Hillegersberg Zuid

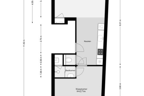
Het adres van deze woning uit 1925 is Willem van Hillegaersbergstraat 35B01 te Rotterdam. Het pand heeft een oppervlakte van 50m² en heeft 2 kamers kamers waarvan 1 slaapkamers. De geschatte waarde van deze woning is € 285.000.

Bekijk alle woningen in Hillegersberg Zuid

Gegevens van Bovenwoning (appartement)

Bouwjaar
1925
Geschatte waarde
€ 285.000
Oppervlakte
50 m2
Inhoud
173 m3
Aantal kamers
2 kamers
Slaapkamers
1
Badkamers
1 badkamer en 1 apart toilet
Soort bouw
Bestaande bouw
Eigendomssituatie
Volle eigendom
Ligging
Aan rustige weg en in woonwijk

Voorzieningen in de buurt

Boodschappen0,3 km
Grote supermarkt0,4 km
Cafetaria0,3 km
Restaurant0,2 km
Huisarts0,3 km
Ziekenhuis1,8 km
Kinderdagverblijf0,3 km
BSO0,3 km
Alle voorzieningen in Hillegersberg Zuid

Binnenkijken bij Willem van Hillegaersbergstraat 35B01 te Rotterdam

Meer meldingen in deze omgeving

112 melding
Donderdag 26-3-2026 om 10:27
Kleiweg, 3045PM Rotterdam

112 melding
Donderdag 26-3-2026 om 10:11
Kleiweg, 3045PM Rotterdam

112 melding
Donderdag 26-3-2026 om 09:54
Kleiweg, 3045PM Rotterdam

Binnenkijken bij
Donderdag 26-3-2026
Schiebroeksesingel 35, 3051JM Rotterdam

Binnenkijken bij
Donderdag 26-3-2026
Bergpolderplein 11B, 3051GB Rotterdam

Binnenkijken bij
Donderdag 26-3-2026
Erasmussingel 4B, 3051KE Rotterdam

112 melding
Donderdag 26-3-2026 om 09:09
Kleiweg, 3045PM Rotterdam

112 melding
Donderdag 26-3-2026 om 08:34
Kleiweg, 3045PM Rotterdam

Direct een e-mail ontvangen bij nieuwe meldingen in deze regio?

Meld je dan GRATIS aan voor de Oozo Alert service voor Hillegersberg Zuid

Instellen

Meer nieuws in Hillegersberg Zuid

Weten hoe eenvoudig het is om af te vallen? Zonder pillen en smeersels en zonder je in het zweet te werken!
Kijk op eenvoudig-afvallen.nl

© 2012 - 2026 OOZO.nl - info@oozo.nl - Gegevens verwijderen? | Disclaimer | Privacy statement