Woning Statenlaan 27 Rotterdam

Statenlaan 27, 3051HK Rotterdam

Ontvang updates voor Hillegersberg-Zuid

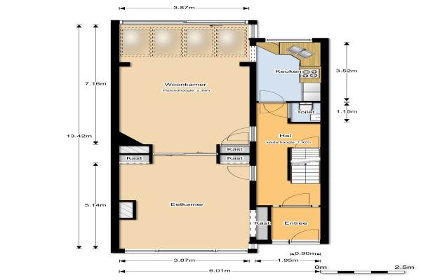
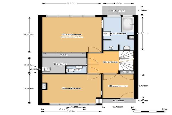
Het adres van deze woning uit 1930 is Statenlaan 27 te Rotterdam. Het pand heeft een oppervlakte van 195m² en een perceeloppervlakte van 164m² en heeft 9 kamers kamers waarvan 6 slaapkamers. De geschatte waarde van deze woning is € 695.000.

Bekijk alle woningen in Hillegersberg-Zuid

Gegevens van Herenhuis, tussenwoning

Bouwjaar
1930
Geschatte waarde
€ 695.000
Oppervlakte
195 m2
Inhoud
835 m3
Aantal kamers
9 kamers
Slaapkamers
6
Badkamers
2 badkamers en 2 aparte toiletten
Soort bouw
Bestaande bouw
Eigendomssituatie
Volle eigendom
Ligging
Aan rustige weg en in woonwijk
Tuin
Achtertuin
Achtertuin
77 m² (12,8m diep en 6m breed)

Voorzieningen in de buurt

Boodschappen0,3 km
Grote supermarkt0,4 km
Cafetaria0,3 km
Restaurant0,2 km
Huisarts0,3 km
Ziekenhuis1,8 km
Kinderdagverblijf0,3 km
BSO0,3 km
Alle voorzieningen in Hillegersberg-Zuid

Binnenkijken bij Statenlaan 27 te Rotterdam

Meer meldingen in deze omgeving

112 melding
Vrijdag 14-11-2025 om 19:05
Kleiweg, 3045PM Rotterdam

112 melding
Vrijdag 14-11-2025 om 18:44
Kleiweg, 3045PM Rotterdam

112 melding
Vrijdag 14-11-2025 om 18:31
Kleiweg, 3045PM Rotterdam

112 melding
Vrijdag 14-11-2025 om 17:51
Kleiweg, 3045PM Rotterdam

112 melding
Vrijdag 14-11-2025 om 16:18
Kleiweg, 3045PM Rotterdam

112 melding
Vrijdag 14-11-2025 om 14:09
Kleiweg, 3045PM Rotterdam

112 melding
Vrijdag 14-11-2025 om 09:59
Kleiweg, 3045PM Rotterdam

Binnenkijken bij
Vrijdag 14-11-2025
Schiebroekseweg 1, 3051JN Rotterdam

Direct een e-mail ontvangen bij nieuwe meldingen in deze regio?

Meld je dan GRATIS aan voor de Oozo Alert service voor Hillegersberg-Zuid

Instellen

Meer nieuws in Hillegersberg-Zuid

Weten hoe eenvoudig het is om af te vallen? Zonder pillen en smeersels en zonder je in het zweet te werken!
Kijk op eenvoudig-afvallen.nl

© 2012 - 2025 OOZO.nl - info@oozo.nl - Gegevens verwijderen? | Disclaimer | Privacy statement