Woning Robijnstraat 8 Rotterdam

Robijnstraat 8, 3051VM Rotterdam

Ontvang updates voor Hillegersberg Zuid

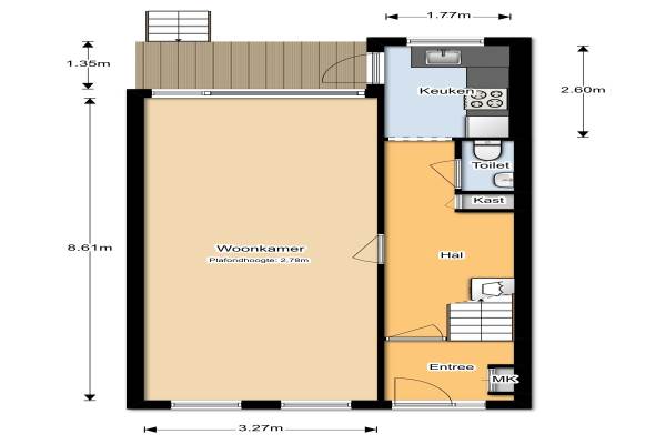
Het adres van deze woning uit 1929 is Robijnstraat 8 te Rotterdam. Het pand heeft een oppervlakte van 142m² en heeft 9 kamers kamers waarvan 6 slaapkamers. De geschatte waarde van deze woning is € 350.000.

Bekijk alle woningen in Hillegersberg Zuid

Gegevens van Eengezinswoning, tussenwoning

Bouwjaar
1929
Geschatte waarde
€ 350.000
Oppervlakte
142 m2
Inhoud
498 m3
Aantal kamers
9 kamers
Slaapkamers
6
Badkamers
1 apart toilet
Soort bouw
Bestaande bouw
Eigendomssituatie
Volle eigendom
Ligging
Aan rustige weg, in woonwijk en beschutte ligging
Tuin
Achtertuin
Achtertuin
33 m² (6,5m diep en 5m breed)

Voorzieningen in de buurt

Boodschappen0,3 km
Grote supermarkt0,4 km
Cafetaria0,3 km
Restaurant0,2 km
Huisarts0,3 km
Ziekenhuis1,8 km
Kinderdagverblijf0,3 km
BSO0,3 km
Alle voorzieningen in Hillegersberg Zuid

Binnenkijken bij Robijnstraat 8 te Rotterdam

Meer meldingen in deze omgeving

Binnenkijken bij
Zaterdag 14-2-2026
Saffierstraat 34, 3051XW Rotterdam

Binnenkijken bij
Zaterdag 14-2-2026
Lisbloemstraat 65B, 3051TP Rotterdam

112 melding
Zaterdag 14-2-2026 om 00:22
Kleiweg, 3045PM Rotterdam

112 melding
Zaterdag 14-2-2026 om 00:03
Kleiweg, 3045PM Rotterdam

112 melding
Vrijdag 13-2-2026 om 18:53
Kleiweg, 3045PM Rotterdam

112 melding
Vrijdag 13-2-2026 om 17:58
Kleiweg, 3045PM Rotterdam

112 melding
Vrijdag 13-2-2026 om 15:16
Kleiweg, 3045PM Rotterdam

112 melding
Vrijdag 13-2-2026 om 13:50
Kleiweg, 3045PM Rotterdam

Direct een e-mail ontvangen bij nieuwe meldingen in deze regio?

Meld je dan GRATIS aan voor de Oozo Alert service voor Hillegersberg Zuid

Instellen

Meer nieuws in Hillegersberg Zuid

Weten hoe eenvoudig het is om af te vallen? Zonder pillen en smeersels en zonder je in het zweet te werken!
Kijk op eenvoudig-afvallen.nl

© 2012 - 2026 OOZO.nl - info@oozo.nl - Gegevens verwijderen? | Disclaimer | Privacy statement