Woning Joseph Isra&#2 3 Rotterdam

Joseph Isra 3, 3055BG Rotterdam

Ontvang updates voor Molenlaankwartier

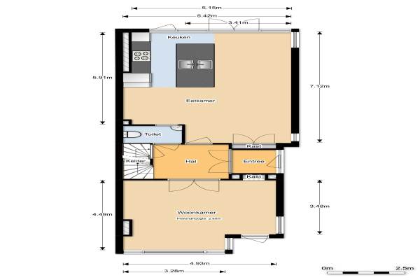
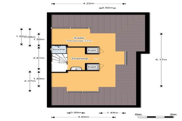
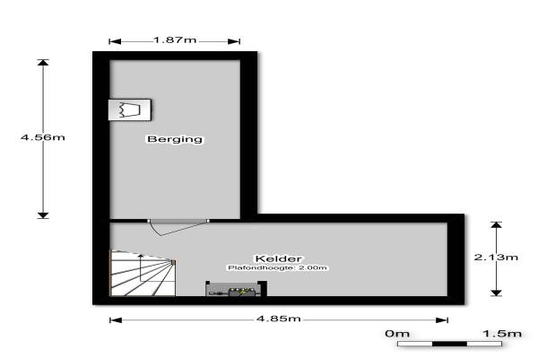
Het adres van deze woning uit 1934 is Joseph Isra 3 te Rotterdam. Het pand heeft een oppervlakte van 150m² en een perceeloppervlakte van 338m² en heeft 7 kamers kamers waarvan 5 slaapkamers. De geschatte waarde van deze woning is € 850.000.

Bekijk alle woningen in Molenlaankwartier

Gegevens van Eengezinswoning, 2-onder-1-kapwoning

Bouwjaar
1934
Geschatte waarde
€ 850.000
Oppervlakte
150 m2
Inhoud
575 m3
Aantal kamers
7 kamers
Slaapkamers
5
Badkamers
1 badkamer en 2 aparte toiletten
Soort bouw
Bestaande bouw
Eigendomssituatie
Volle eigendom
Ligging
In woonwijk
Tuin
Achtertuin, voortuin en zijtuin
Achtertuin
176 m² (22m diep en 8m breed)

Voorzieningen in de buurt

Boodschappen0,5 km
Grote supermarkt0,6 km
Cafetaria0,6 km
Restaurant0,5 km
Huisarts0,8 km
Ziekenhuis4,7 km
Kinderdagverblijf0,4 km
BSO0,4 km
Alle voorzieningen in Molenlaankwartier

Binnenkijken bij Joseph Isra 3 te Rotterdam

Meer meldingen in deze omgeving

112 melding
Zondag 3-5-2026 om 22:30
Van Beethovenlaan, 3055JD Rotterdam

112 melding
Zondag 3-5-2026 om 07:28
Grindweg, 3055VD Rotterdam

112 melding
Zaterdag 2-5-2026 om 08:47
Van Beethovenlaan, 3055JD Rotterdam

112 melding
Zaterdag 2-5-2026 om 08:14
Burgemeester de Villeneuvesingel, 3055AN Rotterdam

112 melding
Vrijdag 1-5-2026 om 23:37
Burgemeester Le Fèvre de Montignylaan, 3055LA Rotterdam

112 melding
Vrijdag 1-5-2026 om 22:56
Van Beethovenlaan, 3055JD Rotterdam

112 melding
Vrijdag 1-5-2026 om 15:38
Van Beethovenlaan, 3055JD Rotterdam

Binnenkijken bij
Vrijdag 1-5-2026
Terbregse Rechter Rottekade 117, 3055XC Rotterdam

Direct een e-mail ontvangen bij nieuwe meldingen in deze regio?

Meld je dan GRATIS aan voor de Oozo Alert service voor Molenlaankwartier

Instellen

Meer nieuws in Molenlaankwartier

Weten hoe eenvoudig het is om af te vallen? Zonder pillen en smeersels en zonder je in het zweet te werken!
Kijk op eenvoudig-afvallen.nl

© 2012 - 2026 OOZO.nl - info@oozo.nl - Gegevens verwijderen? | Disclaimer | Privacy statement