Woning Breitnersingel 39 Rotterdam

Breitnersingel 39, 3055BB Rotterdam

Ontvang updates voor Molenlaankwartier

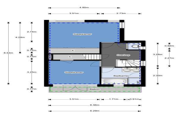
Het adres van deze woning uit 1928 is Breitnersingel 39 te Rotterdam. Het pand heeft een oppervlakte van 147m² en een perceeloppervlakte van 255m² en heeft 6 kamers kamers waarvan 4 slaapkamers. De geschatte waarde van deze woning is € 1.175.000.

Bekijk alle woningen in Molenlaankwartier

Gegevens van Eengezinswoning, hoekwoning

Bouwjaar
1928
Geschatte waarde
€ 1.175.000
Oppervlakte
147 m2
Inhoud
637 m3
Aantal kamers
6 kamers
Slaapkamers
4
Badkamers
1 badkamer en 2 aparte toiletten
Soort bouw
Bestaande bouw
Eigendomssituatie
Volle eigendom
Ligging
Aan rustige weg, aan water, in centrum en in woonwijk
Tuin
Achtertuin en voortuin
Achtertuin
150 m² (15,00 meter diep en 10,00 meter breed)

Voorzieningen in de buurt

Boodschappen0,5 km
Grote supermarkt0,6 km
Cafetaria0,6 km
Restaurant0,5 km
Huisarts0,8 km
Ziekenhuis4,7 km
Kinderdagverblijf0,4 km
BSO0,4 km
Alle voorzieningen in Molenlaankwartier

Binnenkijken bij Breitnersingel 39 te Rotterdam

Meer meldingen in deze omgeving

112 melding
Zondag 24-5-2026 om 22:48
Liduinaplein, Rotterdam

112 melding
Zondag 24-5-2026 om 18:00
Schumannlaan, 3055HS Rotterdam

112 melding
Zondag 24-5-2026 om 17:07
Van Beethovenlaan, 3055JD Rotterdam

112 melding
Zondag 24-5-2026 om 16:45
Burgemeester Le Fèvre de Montignylaan, 3055NC Rotterdam

112 melding
Zondag 24-5-2026 om 16:06
Burgemeester Le Fèvre de Montignylaan, 3055NC Rotterdam

112 melding
Zondag 24-5-2026 om 00:23
Van Ballegooijsingel, 3055PC Rotterdam

112 melding
Zaterdag 23-5-2026 om 19:26
Joseph Israëlslaan, 3055BG Rotterdam

112 melding
Zaterdag 23-5-2026 om 19:26
Joseph Israëlslaan, 3055BG Rotterdam

Direct een e-mail ontvangen bij nieuwe meldingen in deze regio?

Meld je dan GRATIS aan voor de Oozo Alert service voor Molenlaankwartier

Instellen

Meer nieuws in Molenlaankwartier

Weten hoe eenvoudig het is om af te vallen? Zonder pillen en smeersels en zonder je in het zweet te werken!
Kijk op eenvoudig-afvallen.nl

© 2012 - 2026 OOZO.nl - info@oozo.nl - Gegevens verwijderen? | Disclaimer | Privacy statement