Woning Molenvijver 36B Rotterdam

Molenvijver 36B, 3052HD Rotterdam

Ontvang updates voor Schiebroek

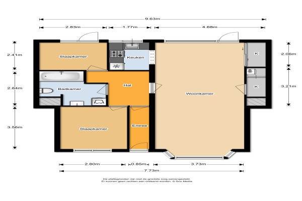
Het adres van deze woning uit 1933 is Molenvijver 36B te Rotterdam. Het pand heeft een oppervlakte van 81m² en heeft 3 kamers kamers waarvan 2 slaapkamers. De geschatte waarde van deze woning is € 245.000.

Bekijk alle woningen in Schiebroek

Gegevens van Benedenwoning (appartement)

Bouwjaar
1933
Geschatte waarde
€ 245.000
Oppervlakte
81 m2
Inhoud
320 m3
Aantal kamers
3 kamers
Slaapkamers
2
Badkamers
1 badkamer
Soort bouw
Bestaande bouw
Eigendomssituatie
Volle eigendom
Ligging
Aan park, aan rustige weg, in woonwijk, vrij uitzicht en open ligging
Tuin
Achtertuin en voortuin
Achtertuin
81 m² (9m diep en 9m breed)

Voorzieningen in de buurt

Boodschappen0,4 km
Grote supermarkt0,5 km
Cafetaria0,4 km
Restaurant0,4 km
Huisarts0,6 km
Ziekenhuis2,7 km
Kinderdagverblijf0,3 km
BSO0,5 km
Alle voorzieningen in Schiebroek

Binnenkijken bij Molenvijver 36B te Rotterdam

Meer meldingen in deze omgeving

112 melding
Woensdag 7-1-2026 om 03:57
Hamakerstraat, 3052JD Rotterdam

112 melding
Woensdag 7-1-2026 om 03:18
Hamakerstraat, 3052JC Rotterdam

112 melding
Woensdag 7-1-2026 om 02:54
Wilgenlei, 3052CA Rotterdam

Binnenkijken bij
Woensdag 7-1-2026
Paltroklaan 63, 3052HH Rotterdam

112 melding
Dinsdag 6-1-2026 om 23:57
Zilverschoonstraat, Rotterdam

112 melding
Dinsdag 6-1-2026 om 20:37
Adriaan Kluitstraat, 3052RA Rotterdam

112 melding
Dinsdag 6-1-2026 om 15:04
Dotterbloemstraat, 3053JV Rotterdam

112 melding
Dinsdag 6-1-2026 om 15:02
Dotterbloemstraat, 3053JV Rotterdam

Direct een e-mail ontvangen bij nieuwe meldingen in deze regio?

Meld je dan GRATIS aan voor de Oozo Alert service voor Schiebroek

Instellen

Meer nieuws in Schiebroek

Weten hoe eenvoudig het is om af te vallen? Zonder pillen en smeersels en zonder je in het zweet te werken!
Kijk op eenvoudig-afvallen.nl

© 2012 - 2026 OOZO.nl - info@oozo.nl - Gegevens verwijderen? | Disclaimer | Privacy statement