Woning Secretariestraat 44 Rotterdam

Secretariestraat 44, 3052XL Rotterdam

Ontvang updates voor Schiebroek

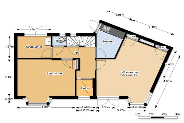
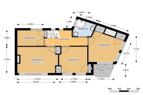
Het adres van deze woning uit 1928 is Secretariestraat 44 te Rotterdam. Het pand heeft een oppervlakte van 115m² en een perceeloppervlakte van 157m² en heeft 7 kamers kamers waarvan 4 slaapkamers. De geschatte waarde van deze woning is € 375.000.

Bekijk alle woningen in Schiebroek

Gegevens van Eengezinswoning, geschakelde woning

Bouwjaar
1928
Geschatte waarde
€ 375.000
Oppervlakte
115 m2
Inhoud
470 m3
Aantal kamers
7 kamers
Slaapkamers
4
Badkamers
1 badkamer en 1 apart toilet
Soort bouw
Bestaande bouw
Eigendomssituatie
Eigendom belast met vruchtgebruik
Ligging
Aan rustige weg en in woonwijk
Tuin
Achtertuin en voortuin

Voorzieningen in de buurt

Boodschappen0,4 km
Grote supermarkt0,5 km
Cafetaria0,4 km
Restaurant0,4 km
Huisarts0,6 km
Ziekenhuis2,7 km
Kinderdagverblijf0,3 km
BSO0,5 km
Alle voorzieningen in Schiebroek

Binnenkijken bij Secretariestraat 44 te Rotterdam

Meer meldingen in deze omgeving

112 melding
Dinsdag 23-12-2025 om 14:03
Wilgenlei, 3053CN Rotterdam

112 melding
Dinsdag 23-12-2025 om 12:36
Adrianalaan, 3053ZC Rotterdam

112 melding
Dinsdag 23-12-2025 om 08:40
Peppelweg, 3053GC Rotterdam

112 melding
Dinsdag 23-12-2025 om 06:23
Bovenkruierlaan, 3052XB Rotterdam

112 melding
Dinsdag 23-12-2025 om 06:22
Bovenkruierlaan, 3052XB Rotterdam

112 melding
Dinsdag 23-12-2025 om 06:12
Bovenkruierlaan, 3052XB Rotterdam

Nieuw bedrijf
December 2025
Moddermanstraat 90, 3053TM Rotterdam

Nieuw bedrijf
December 2025
Loderstraat 13, 3052AL Rotterdam

Direct een e-mail ontvangen bij nieuwe meldingen in deze regio?

Meld je dan GRATIS aan voor de Oozo Alert service voor Schiebroek

Instellen

Meer nieuws in Schiebroek

Weten hoe eenvoudig het is om af te vallen? Zonder pillen en smeersels en zonder je in het zweet te werken!
Kijk op eenvoudig-afvallen.nl

© 2012 - 2025 OOZO.nl - info@oozo.nl - Gegevens verwijderen? | Disclaimer | Privacy statement